GOTOWE mieszkanie 3 pokojowe widok na las Brak PCC
cena: 749000 złMieszkanie Sprzedam
pomorskie Gdynia Chwarzno-Wiczlino575 ... ... Pokaż numer
Wyślij wiadomość
Na sprzedaż mieszkanie w Gdyni, usytuowane na trzecim piętrze w trzypiętrowym budynku. Nieruchomość o powierzchni 58,3 m² składa się z trzech pokoi, co czyni ją idealnym miejscem dla rodziny lub osób poszukujących przestrzeni do pracy i wypoczynku. Mieszkanie jest w stanie do remontu, co daje możliwość aranżacji wnętrza według własnych upodobań. Budynek został wybudowany w 2024 roku, co zapewnia nowoczesne rozwiązania budowlane oraz komfort użytkowania. Ogrzewanie w mieszkaniu jest centralne, co gwarantuje ciepło w zimowe dni. Nieruchomość będzie dostępna od lipca 2025 roku, co pozwala na zaplanowanie przeprowadzki. Gdynia to miasto z bogatą ofertą kulturalną i rekreacyjną, a lokalizacja mieszkania sprzyja codziennemu życiu.
Wyjątkowość mieszkania:
- bardzo dobrze nasłonecznione ( zachodnie )
- widok na las
- taras o powierzchni 14m2
- wyjście na taras z balkonu oraz z jednej sypialni
- bardzo funkcjonalny układ
- mieszkanie nowe
- ściany wycekolowane oraz pomalowane na biało
-kupujący zwolniony z podatku PCC
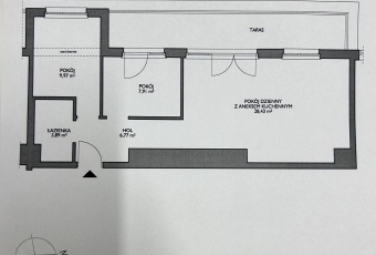
Mieszkanie składa się z:
- Salon z aneksem kuchennym
- dwa osobne pokoje
- korytarz
- łazienka
- taras
-komórka lokatorska - 10 000 zł ( zakup obligatoryjny )
- miejsce w hali garażowej - 45 000 zł ( zakup nie jest obligatoryjny)
Serdecznie zapraszam do kontaktu w celu uzyskania dodatkowych informacji oraz umówienia się na prezentację.
Nie interesują mnie oferty biura nieruchomości.
Data dodania: 2025-11-27 07:20
Data modyfikacji: 2025-11-27 07:22


