Apartament w Gdyni Orłowo OKAZJA
cena: 969000 złMieszkanie Sprzedam
pomorskie Gdynia Orłowo695 ... ... Pokaż numer
Wyślij wiadomość
Dzień dobry, na sprzedaż apartament położony w pięknej dzielnicy Gdynia- Orłowo, ul. Wrocławska 43.
W bardzo bliskim sąsiedztwie pełne zaplecze usługowo-handlowe zlokalizowane przy Placu Górnośląskim.
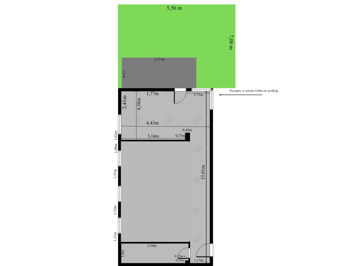
Mieszkanie ma powierzchnię 67,12 m2, stan deweloperski.
To świetna propozycja na lokatę kapitału- mieszkanie jest idealne pod wynajem na pokoje, ale również na komercję typu kancelaria prawna lub kancelaria notarialna itp. W zdjęciach umieszczam również propozycję podziału mieszkania na dwie osobne kawalerki.
Do apartamentu przynależy prywatny, ogrodzony ogródek o powierzchni 40 m2.
Na poziomie -1 znajduje się komórka lokatorska (koszt 10 000 zł) oraz miejsce parkingowe w hali garażowej- koszt 80 000 zł.
Apartament jest zlokalizowany w nowoczesnym budynku o wysokim standardzie wykończenia.
O komfort i bezpieczeństwo dba monitoring i wideofon.
W budynku jest cichobieżna winda.
Lokalizacja budynku- ul. Wrocławska, zapewnia dobry dojazd w każdą stronę Trójmiasta oraz na obwodnicę. Do przystanków komunikacji miejskiej zaledwie 150 metrów.
Ogłoszenie bezpośrednio od Właściciela.
Data dodania: 2025-11-26 12:22
Data modyfikacji: 2025-11-27 11:05


