Nowoczesny dom w zabudowie bliźniaczej Pobiedziska
cena: 534000 złDom Sprzedam
wielkopolskie Pobiedziska796 ... ... Pokaż numer
Wyślij wiadomość
Nowa Willa Pobiedziska – Unikatowa zabudowa bliźniacza!
________________________________________________________________
Na sprzedaż oferujemy cztery komfortowe bliźniaki w Pobiedziskach.
Inwestycja "Nowa Willa Pobiedziska" łączy nowoczesną architekturę, komfort codziennego życia i spokojne otoczenie w pobliżu natury, a jednocześnie zapewnia szybki i wygodny dojazd do Poznania.
Opis inwestycji:
Wolnostojący dom o kameralnej zabudowie bliźniaczej został zaprojektowany z myślą o wygodzie i prywatności mieszkańców.
Każdy z lokali:
• posiada niezależne wejście,
• ma zapewnione miejsce postojowe wykonane z kostki,
• wyposażone jest w ogrzewanie podłogowe,
• oddzielone zostało od sąsiedniego lokalu ścianą akustyczną zwiększającą komfort i ciszę.
Dodatkowo do każdego lokalu przynależy przestronny taras ok. 25m2 z dostępem do ogródka -idealne miejsce na relaks oraz spotkania z bliskimi.
Rozkład pomieszczeń:
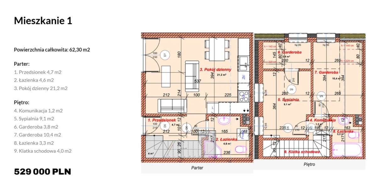
(wymiary podane do lokali o metrażu 62,30m2)
PARTER
Salon z aneksem kuchennym (21,2m2)
Przedsionek (4,7m2)
Łazienka (4,6m2)
PIĘTRO
Sypialnia 1 (10,4m2)
Sypialnia 2 (9,1m2)
Garderoba (3,8m2)
Łazienka (3,3m2)
Komunikacja (1,2m2)
Klatka schodowa (4,0m2)
Przemyślany układ na strefę dzienną i nocną zwiększa funkcjonalność domu.
Dostępne lokale:
• Lokal 1 – 62,30 m² | Cena: 529 000 zł
• Lokal 2 – 62,30 m² | Cena: 529 000 zł
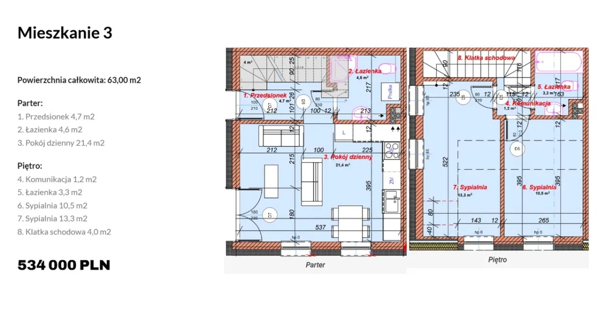
• Lokal 3 – 63,00 m² | Cena: 534 000 zł
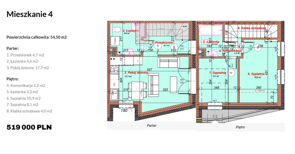
• Lokal 4 – 54,50 m² | Cena: 519 000 zł
Bliźniaki sprzedawane są w stanie deweloperskim, co daje możliwość indywidualnej aranżacji wnętrza według własnych potrzeb.
Termin oddania do użytku: październik 2025 roku.
Dlaczego warto?
• Nowoczesna architektura i funkcjonalny rozkład,
• Kameralna zabudowa,
• Miejsce postojowe w cenie,
• Świetna lokalizacja – blisko stacji PKP, szkół, sklepów oraz terenów zielonych,
• Idealne zarówno do zamieszkania, jak i pod wynajem.
Dla miłośników natury w niedalekiej odległości znajduję się jezioro Bezdruchowo, gdzie rozpoczyna się szlak wodny "Puszcza Zielonka". Jest to miejsce gdzie można wypocząć jak również aktywnie spędzić czas.
Nie przegap okazji! Zainwestuj w wygodny i nowoczesny dom w Pobiedziskach.
Zapraszamy do kontaktu i rezerwacji!
________________________________________________________________
Zapewniamy bezpłatną pomoc w uzyskaniu najlepszych warunków kredytowych na rynku.
Powyższy opis ma charakter informacyjny i nie stanowi oferty w rozumieniu KC.
Informacje zawarte w ogłoszeniu, zostały sporządzone na podstawie oględzin oraz danych przekazanych przez właściciela i mogą ulec aktualizacji i nie stanowią oferty określonej w art. 66 i następnych K.C.
Zdjęcia i opisy w tej ofercie objęte są ochroną praw autorskich majątkowych i osobistych, stanowią własność w świetle prawa autorskiego. Wykorzystywanie ich lub rozpowszechnianie bez pisemnej zgody autora, jest naruszeniem praw autorskich i pociąga za sobą odpowiedzialność prawną.
Treść niniejszego ogłoszenia nie stanowi oferty handlowej w rozumieniu Kodeksu Cywilnego.
Data dodania: 2025-10-16 09:43
Data modyfikacji: 2025-10-16 19:26


