Mieszkanie w centrum 82m2 4 pokoje wysoki standard
cena: 752000 złMieszkanie Sprzedam
mazowieckie Siedlce485 ... ... Pokaż numer
Wyślij wiadomość
Opis
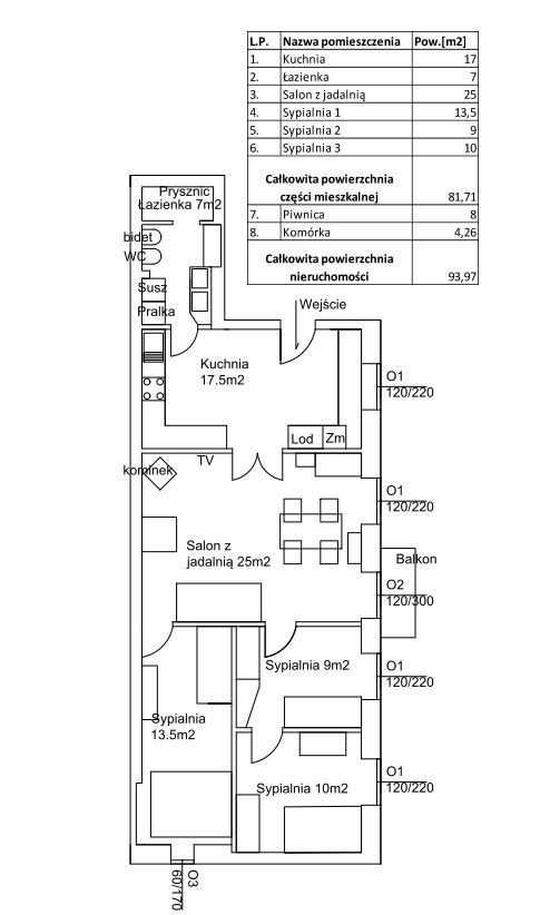
Przedmiotem sprzedaży jest przestronne, ustawne, 4-pokojowe mieszkanie o powierzchni 81,71m2 plus balkon. Z uwagi na układ pomieszczeń oraz zaplanowanie komunikacji w obrębie stref wspólnego użytkowania, odczuwalny metraż mieszkania wydaje się większy.
Mieszkanie jest zlokalizowane w unikatowej, zabytkowej, w pełni odrestaurowanej kamienicy z 1910r, tworząc niepowtarzalny klimat i prywatność. Lokal znajduje się na 2-gim piętrze, z wejściem przez ustronną klatkę schodową, z której korzystają zaledwie 2 rodziny. Jako najwyższy obiekt wśród okolicznych jest świetnie doświetlony, a pomieszczenia o wysokości 315cm oraz wysokie okna zapewniają poczucie przestronności.
Lokal jest w pełni wykończony, w wysokim standardzie, gotowy do zamieszkania, w stanie bardzo dobrym, nie wymaga dodatkowych nakładów.
Do lokalu przynależy 8m2 piwnica oraz komórka lokatorska o powierzchni 4,3m2. Całkowita powierzchnia nieruchomości podlegającej sprzedaży wynosi 93,97m2. Dodatkowo jest dostępna do użytku wydzielona strefa strychu o powierzchni około 25m2. Miejsce parkingowe na ogólnodostępnym parkingu lub na wspólnym terenie posesji.
Podstawowe informacje:
• Powierzchnia użytkowa mieszkania 81,71m2 (całkowita powierzchnia nieruchomości 93,97m2)
• Liczba pokoi: 4
• Piętro: 2/2
• Rok budowy: 1910 (kamienica zabytkowa, gruntownie odrestaurowana w świetnym stanie technicznym)
• Stan techniczny mieszkania: bardzo dobry, gotowe do wprowadzenia
• Cena: 752 000 zł (9200/m2)
• Dodatkowo: komórka, piwnica, dostępna wydzielona strefa strychu, na terenie posesji jest możliwość parkowania
• Ogrzewanie centralne, jako drugie źródło ciepła – kominek
• Stan prawny – pełna własność
Atuty nieruchomości:
• Niepowtarzalny, zabytkowy, unikatowy budynek, stanowiący perełkę miasta
• Funkcjonalny układ pomieszczeń z maksymalnym wykorzystaniem powierzchni
• Wysokie przestronne pomieszczenia, świetnie doświetlone (okna sięgają do wysokości 3m od posadzki)
• Cisza i prywatność, dające komfort użytkowania
• Balkon
• Piwnica, komórka, strych
• Lokalizacja w samym centrum miasta, bliskość do PKP(600m), szkół, przedszkoli, żłobków (kilka w promieniu 500m), usług i hastronomii (bezpośrednie sąsiedztwo), urzędów (do 400m), sklepów biedronki, topaz, wszelkie inne do 500m), stref rekreacyjnych (plac Sikorskiego 200m, park 900m, teatr 500m, MOK 400m)
• Kameralna klatka schodowa (tylko 2 rodziny), domofon, zamknięty wjazd na posesję
• Klimatyzacja, kominek
Koszty utrzymania:
• Czynsz wspólnoty: 650 zł
• Prąd – według indywidualnego zużycia
• Internet, TV – według indywidualnych umów
• Ogrzewanie centralne, woda zimna, woda ciepła – według zużycia, rozliczane za pośrednictwem wspólnoty
Zapraszam do kontaktu:
Aleksandra Skłodowska-Wilczak (505115978)
Łukasz Wilczak (510084309)
Data dodania: 2026-01-05 13:43
Data modyfikacji: 2026-01-07 09:44


