Logowanie
Wiadomości:

Rondo Daszyńskiego, 3 p. praktyczny układ, widok!

cena: 1225000 zł

Mieszkanie Sprzedam

mazowieckie Warszawa Wola
Kontakt
790 ... ... Pokaż numer
630
4
8
Apartamentowiec
2024
3
56
do wykończenia
nowe PCV
wymienione
miejskie
prąd, woda, ciepła woda miejska, ciepła woda własna, telefon, internet, TV kablowa
balkon, garaż, miejsce parkingowe
fitness, basen, zabudowa niska, bank/bankomat, komenda policji, apteka, przychodnia/szpital, PKS, autobus, kolej podmiejska, metro, tramwaj, centrum handlowe, żłobek, przedszkole, plac zabaw, szkoła podstawowa, gimnazjum

Wyślij wiadomość

Wyślij

Na sprzedaż 3-pokojowy mieszkanie w budynku o podwyższonym standardzie.

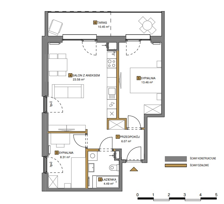
Lokal o powierzchni 55,7 m², w stanie deweloperskim, położony na Warszawskiej Woli, przy ul. Kolejowej 19 – tuż przy granicy z Centrum Warszawy.

Układ mieszkania

Mieszkanie znajduje się na 3. piętrze i wyróżnia się przemyślanym, funkcjonalnym rozkładem — salon z aneksem kuchennym, duża sypiania z miejscem na garderobę, druga sypiania/gabinet, łazienka + dodatkowo balkon. Z mieszkania widok na panoramę centrum Warszawy i biurowców przy Rondzie Daszyńskiego.

Atuty mieszkania:

narożne
dobrze doświetlone
balkon
sypialnia z miejscem na garderobę
przestronny salon z aneksem kuchennym
druga sypialnia lub gabinet
miejsce w garażu z przyłączem do ładowarki
Dla mieszkania przygotowany jest projekt wykończenia pod klucz jak na wizualizacjach. Sprzedaż razem z gotowym projektem do dostosowania przez architekta.

Do lokalu przynależy miejsce parkingowe w garażu podziemnym, dostępne za dodatkową opłatą w wysokości 68 000 zł.

Mam na sprzedaż również mieszkanie o takim samym rozkładzie i z dużym balkonem.

Osiedle

Budynek jest częścią inwestycji "Kolej na 19", zrealizowanej przez dewelopera PHN i oddanej do użytku właśnie przed chwilą w listopadzie 2024 roku. Prace wykończeniowe można prowadzić od zaraz. Kameralne osiedle składa się z czterech budynków, zaprojektowanych z dbałością o detale:

wysoki standard wykończenia,
stylowa elewacja,
ochrona, teren zamknięty
kontrola dostępu, wideodomofony
starannie zaplanowane tereny wspólne.
Lokalizacja

Ulica Kolejowa zapewnia doskonałą komunikację z każdą częścią miasta:

Metro Rondo Daszyńskiego – 8 minut,
Stacja PKP/SKM Warszawa Ochota – 13 minut,
Dworzec Warszawa Zachodnia – 15 minut,
Dworzec Warszawa Centralna – 11 minut,
Trasa S7 – 5 minut,
Lotnisko Chopina – 25 minut.
W okolicy znajdują się sklepy, centra handlowe, biura, kluby fitness oraz pełna infrastruktura usługowa.

Informacje dodatkowe

Sprzedaż bezpośrednia. NA ŻADNYCH WARUNKACH I POD ŻADNYM POZOREM NIE WSPÓŁPRACUJĘ Z BIURAMI NIERUCHOMOŚCI.

Data dodania: 2025-09-15 15:47
Data modyfikacji: 2025-09-30 20:41