Mieszkanie Włocławek ul. Hoża / I piętro
cena: 235000 złMieszkanie Sprzedam
kujawsko-pomorskie Włocławek Zazamcze511 ... ... Pokaż numer
Wyślij wiadomość
Oferuję na sprzedaż komfortowe dwupokojowe mieszkanie na osiedlu Zazamcze przy ulicy Hożej.
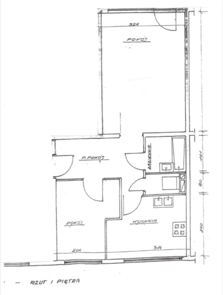
Mieszkanie o powierzchni 39 m2, usytuowane na pierwszym piętrze czteropiętrowego bloku .
Mieszkanie składa się dwóch niezalenych pokoi w tym jeden z balkonem, jasnej kuchni z oknem
przedpokoju oraz oddzielnych łazienki i wc.
Niewątpliwymi atutami oferowanego mieszkania są świetny rozkład pomieszczeń wszystkie są niezależne i dobrze ustawne .
Stosunkowo niskie opłaty administracyjne z wliczonymi zaliczkami na ogrzewanie ora bieżąca wodę, wywóz nieczystości oraz inne opłaty związane zużytkowaniem nieruchomości.
Świetna lokalizacja w bezpośrednim sąsiedztwie lasu, terenów rekreacyjnych oraz niezbędnej infrastruktury jak sklepy, szkoła , przedszkole oraz dworzec.
Mieszkanie do wydania od zaraz .
Data dodania: 2026-01-01 17:35
Data modyfikacji: 2026-01-19 13:12


