Jazgarzew do zamieszkania lub na działalność
cena: 1150000 złDom Sprzedam
mazowieckie Piaseczno789 ... ... Pokaż numer
Wyślij wiadomość
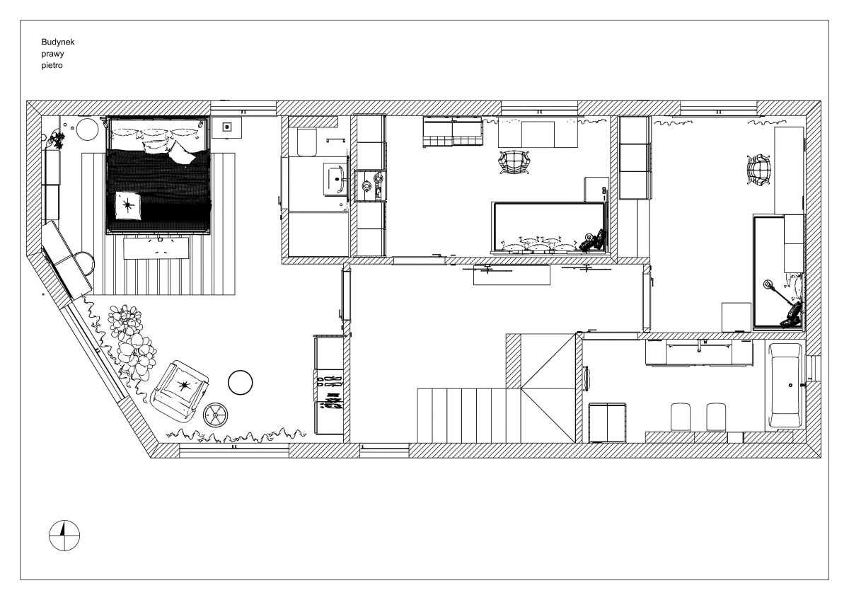
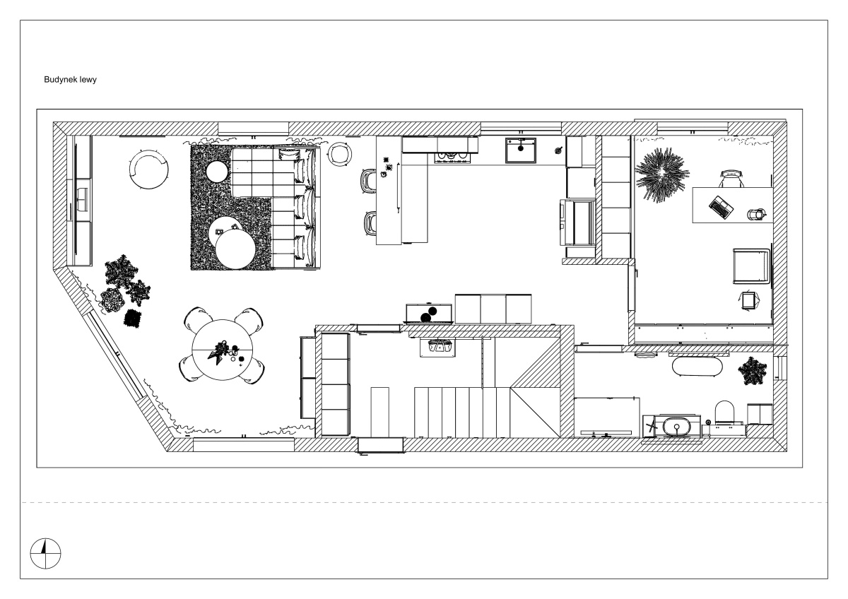
Oferujemy dom jednorodzinny w zabudowie dwulokalowej w stanie deweloperskim o wielkości 142 m2 powierzchni użytkowej z działką 511 m2.
Doskonała lokalizacja do zamieszkania jak i prowadzenia działalności gospodarczej
Adres: ul GŁÓWNA 61c JAZGARZEW bezpośrednio przy drodze asfaltowej z chodnikiem i ścieżką rowerową
W niedalekiej odległości szkoła, przystanek, kościół, miejsce relaksu z boiskiem i urządzeniami do ćwiczeń, centrum handlowe, rzeka Jeziorka i Rezerwat przyrody Biele Chojnowskie.
Stan deweloperski wykonany z wysokiej klasy materiałów, z instalacją rekuperacyjną i rekuperatorem. Piec VIESSMANN VITODENS z zasobnikiem.
Budynek odebrany do użytkowania, gotowy do sprzedaży.
Wszystkie media miejskie doprowadzone i podpisane umowy z dostawcami mediów (wodociąg, kanalizacja, gaz, prąd) dostępny Światłowód.
W cenie profesjonalny projekt wykończenia wnętrza.
Bezpośrednio, bez prowizji, kupujący nie płaci podatku PCC
W przypadku dodatkowych pytań zapraszam do kontaktu.
Data dodania: 2025-12-29 10:49
Data modyfikacji: 2026-02-11 16:12


