Sprzedam dom, basen, staw, działka 1,25 ha - KONIN
cena: 990000 złDom Sprzedam
wielkopolskie Stare Miasto Posoka601 ... ... Pokaż numer
Wyślij wiadomość
Na sprzedaż atrakcyjna nieruchomość położona w prestiżowej lokalizacji w okolicach Konina.
Lokalizacja: Posoka (Rumin) gm. Stare Miasto
1 km od granic Miasta Konin
bezpośrednia lokalizacja przy rzece Powie - 230m linii brzegowej
w otoczeniu lasów i doliny rzeki
w bliskiej odległości rozwijającego się osiedla atrakcyjnej zabudowy mieszkaniowej jednorodzinnej
Opis:
Film promocyjny: https://www.youtube.com/watch?v=OtNWwE_6GOI
Nieruchomość zabudowana budynkiem mieszkalnym w stanie surowym.
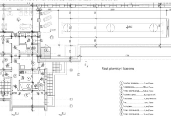
Powierzchnia całkowita: 541,20 m2
Budynek podzielony na część dzienną zlokalizowaną na parterze o pow. 133,50 m2, część sypialną na poddaszu o pow. 93,30 m2 oraz część rekreacyjną (siłownia, basen o wymiarach 3,40m x 20m, głęb. 1,35 m) zlokalizowaną w piwnicy o pow. 314,40 m2.
Budynek ławy fundamentowe żelbetowe, ściany podziemia murowane z bloczka betonowego, ściany nadziemia domu murowane z pustaka ceramicznego gr. 48 cm, elewacja tynk cementowo-wapienny, w części basenowej ściany murowane z bloczka betonowego ocieplone styropianem, stropy żelbetowe Teriva, niecka basenowa żelbetowa, dach w części domu konstrukcji drewnianej kryty blachą na rąbek stojący, w części basenowej stropodach ocieplony wełną mineralną kryty blachą trapezową, ściany wewnętrzne okładziny z tynku cementowo-wapiennego.
Instalacje wewnętrzne: rozprowadzona instalacja elektryczna, wykonano podejścia kanalizacyjne.
Przyłącze: energetyczne, gazu ziemnego, studnia głębinowa z pompą.
Działka:
Powierzchnia działki wynosi 1,2522 ha, w części zagospodarowana jako zarybiony staw ok. 3000 m2.
Cena: 990.000 zł
Dodatkowe informacje:
tel. 601 717 222
Data dodania: 2025-11-04 08:24
Data modyfikacji: 2025-11-04 08:25


