Oddany właśnie do użytku Nowoczesny Dom Premium
cena: 1599000 złDom Sprzedam
mazowieckie Warszawa Wawer794 ... ... Pokaż numer
Wyślij wiadomość
Twój wymarzony nowoczesny dom w zabudowie bliźniaczej z ogródkiem na parterze połączonym z salonem oraz tarasem na II piętrze z widokiem na panoramę Warszawy.
Kup bezpośrednio od dewelopera — bez prowizji, bez pośredników!
Nowoczesne kameralne osiedle w zielonej dzielnicy Wawer-Las
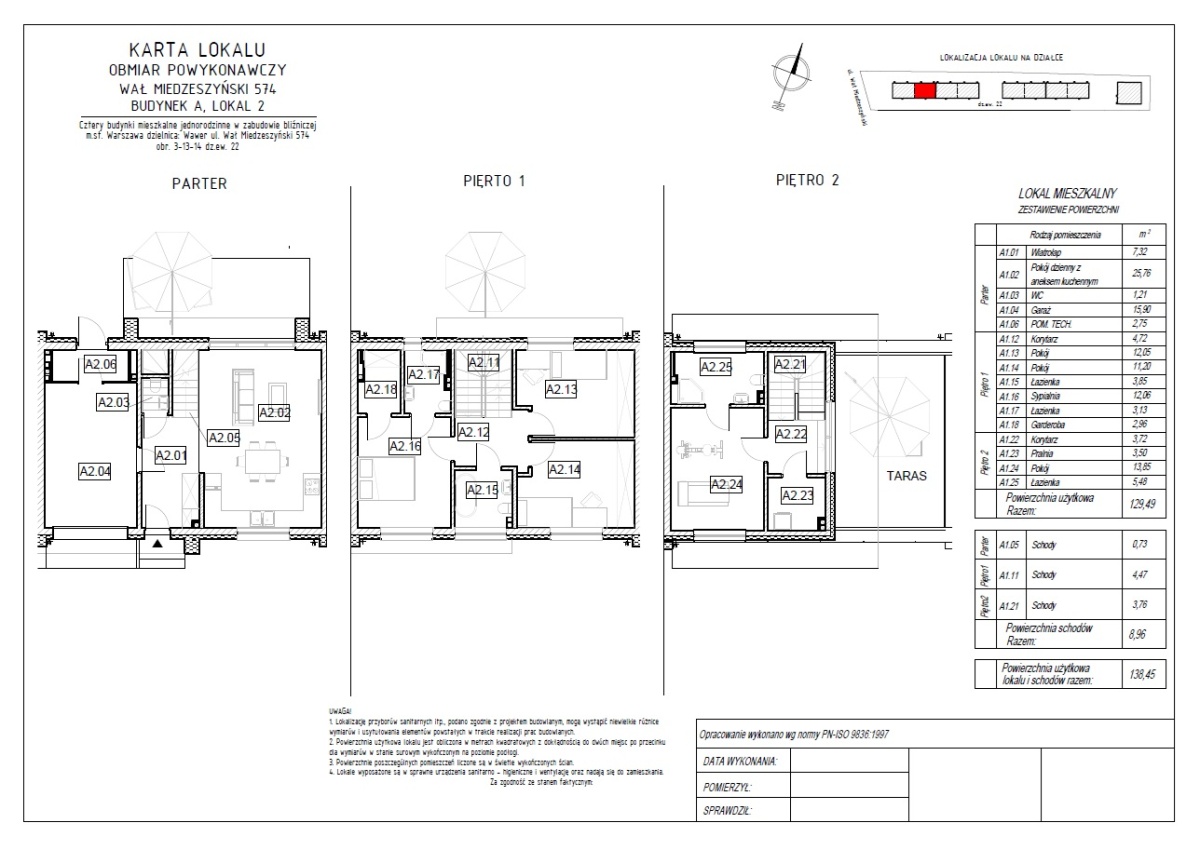
2 domy w zabudowie bliźniaczej po 4 lokale 3 kondygnacyjne w każdym oraz dom jednorodzinny wolnostojący
Zamieszkaj przy ul. Wał Miedzeszyński 574 — w miejscu, gdzie natura spotyka wygodę miejskiego życia, skąd
1 minuta spacerem do 3 przystanków autobusowych
bezpośredni dostęp do ścieżki pieszo-rowerowej nad Wisłą a tamtędy w prawo na Saską Kępę , Stadion Narodowy, Stare Miasto bądź w lewo na plażę Romantyczną, zielone tereny Józefowa lub ....
Tylko 900 m do Trasy Siekierkowskiej
W pobliżu do 500 metrów :
przedszkole,
szkoła,
nowa Biedronka,
piekarnia Grzybki,
sklep Sokołów,
poczta
kameralna galeria handlowa
Dlaczego warto?
Nowoczesna architektura, wysoki standard materiałów oraz staranność wykończenia
Osiedle składa się z 8 domów w zabudowie bliźniaczej oraz 1 wolnostojącego — zaprojektowanych z myślą o estetyce i funkcjonalności.
Przestrzeń i komfort
Dom oferuje:
Wysokość wszystkich pomieszczeń 2,9m,
5 przestronnych pokoi w tym salon z aneksem kuchennym,
3 łazienki ,
WC,
Garaż w bryle budynku,
Dodatkowe miejsce postojowe z boku domu w cenie
Kotłownię,
Pralnię
Ogródek na parterze,
Taras na II piętrze z widokiem na panoramę miasta
Bezpieczeństwo i technologia:
Rozbudowana sieć komputerowa z zaszytą szafa RACK - po 2 punkty komputerowe w każdym pokoju,
Gniazdko TV w każdym pokoju
Dodatkowe 2 punkty pod Wi Fi,
światłowód w domu i a na osiedlu ( operator światłowodowy)
Ogrodzone osiedle z monitoringiem kamerowym
Wideodomofon przy wejściu na osiedle oraz przed każdym domem
Instalacja alarmowa
Rekuperacja — czyste powietrze i niższe rachunki
Ogrzewanie podłogowe w całym domu
Materiały najwyższej jakości użyte do budowy domów:
Porotherm Wienerberger,
Okna SONAROL Perfectherm z tzw. ciepłym montażem,
Izolacje SOPREMA, elewacja Austrotherm (λ = 0,31),
Elewacja - tynk szwajcarskiej marki KABE
Osprzęt elektryczny SCHRACK TECHNIK (Austria)
Kostka brukowa Semmelrock
Dom w stanie deweloperski — gotowy do wykończenia przez nabywcę
Media: gaz, woda, szambo , prąd
Budowa zakończona
Pozwolenie na użytkowanie uzyskane w styczniu 2026
Zadzwoń już dziś i umów się na spotkanie i obejrzyj swój nowy dom!
Data dodania: 2026-01-29 13:38
Data modyfikacji: 2026-01-29 13:39


