Budynek na przedszkole lub inne usługi Warszawa
cena najmu: 79156 złKomercja Wynajmę
mazowieckie Warszawa Bielany605 ... ... Pokaż numer
Wyślij wiadomość
Szanowni Państwo,
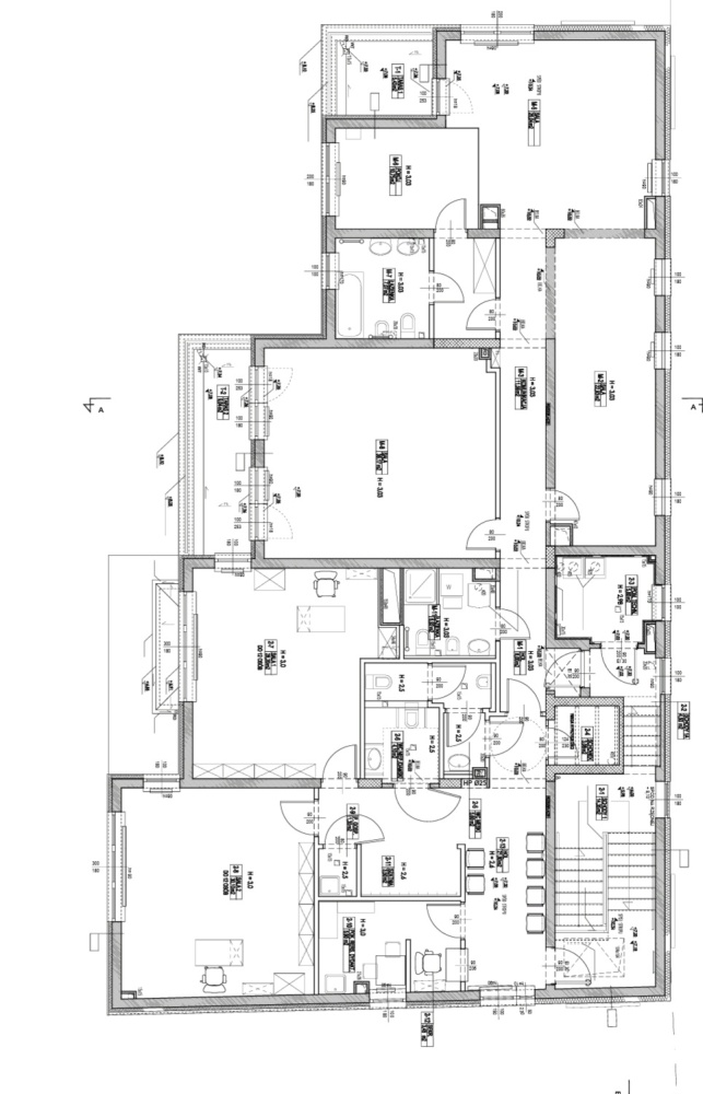
mam do zaoferowania na wynajem trzykondygnacyjny budynek usługowy, zlokalizowany na Bielanach, os. Chomiczówka w Warszawie, o powierzchni całkowitej 1028m2 i użytkowej ok. 850m2, który położony jest na działce o powierzchni 1003m2. Rok budowy 2008.
Budynek jest w pełni przystosowany i od kilkunastu lat przez cały czas wykorzystywany na działalność przedszkolną z oddziałem żłobkowym. Może tam być prowadzona również działalność wczesnoszkolna.
"Wygrzana lokalizacja"!
W obiekcie znajduje się pełne zaplecze kuchenne z jadalnią, sanitariaty i pomieszczenia pomocnicze. Na 1p. jest możliwość połączenia dwóch sal w jedno duże pomieszczenie służące występom dzieci. Budynek spełnia wszystkie wymagania do prowadzenia tego typu dzialalności, posiada wszystkie przyłącza, oraz indywidualne ogrzewanie gazowe. Trzecia kondygnacja może być odseparowana od pozostałych (są dwie niezależne klatki schodowe).
Na terenie działki jest zorganizowany plac zabaw z piaskownicą i elementami infrastruktury służącymi do zabawy dla dzieci.
Rozpoczęcie działalności nie wymaga dużego wkładu finansowego i związane jest w głównej mierze z wyposażeniem, ktore nie jest przedmiotem ogłoszenia.
W budynku może być prowadzona oczywiście również inna nieuciążliwa działalność usługowa. Jest on uniwersalny w swoim przeznaczeniu, po odpowiednim dostosowaniu przez Najemcę.
Dostępność budynku od 1.07.2026r.
Czynsz 80 zł/ m2 netto liczony dla powierzchni całkowitej budynku.
Okres najmu długoterminowy, na czas określony.
Wszystkie koszty utrzymania, mediów itp. po stronie najemcy.
Zabezpieczenie w postaci kaucji.
Ogłoszenie bezpośrednie, bez prowizji.
Zainteresowanych zapraszam do kontaktu.
Niniejsze ogłoszenie ma charakter wyłącznie informacyjny, nie stanowi oferty handlowej w rozumieniu art. 66 § 1 Kodeksu cywilnego oraz innych właściwych przepisów prawnych.
Data dodania: 2026-02-22 23:35
Data modyfikacji: 2026-02-22 23:40


