Mieszkanie 76m2 na ROOSEVELTA OBNIZKA !!
cena: 790000 złMieszkanie Sprzedam
wielkopolskie Poznań Jeżyce881 ... ... Pokaż numer
Wyślij wiadomość
TERAZ W OBNIŻONEJ CENIE o 60 000zł !!
Mieszkanie w sercu Jeżyc – secesyjna perełka w Poznaniu
Marzysz o zamieszkaniu w jednej z najpiękniejszych kamienic w Poznaniu? Ta wyjątkowa oferta jest dla Ciebie!
Prezentujemy 3-pokojowe mieszkanie o powierzchni 76 m², położone na wysokim parterze w zabytkowej, secesyjnej kamienicy przy ulicy Roosevelta 4. Ten prestiżowy adres w sercu Jeżyc, tuż przy Moście Teatralnym, to idealne miejsce dla tych, którzy cenią historię, styl i doskonałą lokalizację.
Niezwykła kamienica z duszą
Kamienica, wzniesiona w 1910 roku, zachwyca swoją architekturą. Jej frontowa elewacja jest ozdobiona jedną z najbardziej efektownych secesyjnych płaskorzeźb w Poznaniu – kobiecą postacią owiniętą winoroślą, która podtrzymuje balkon czwartego piętra. Budynek przeszedł kompleksowy remont w latach 2021-2022, dzięki czemu odzyskał swój dawny blask, a jego dach i elewacja zostały odnowione z najwyższą dbałością o detale.
Funkcjonalne wnętrze gotowe do zamieszkania
Mieszkanie jest po generalnym remoncie i zostało niedawno odświeżone. Dzięki temu jest gotowe do wprowadzenia bez żadnych dodatkowych nakładów finansowych. Mimo lokalizacji w centrum, jest ciche, ponieważ okna wychodzą zarówno na ulicę, jak i na spokojne podwórze.
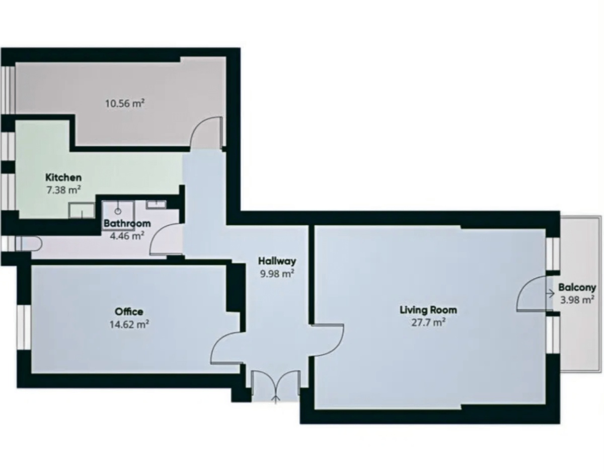
Układ mieszkania:
Trzy ustawne pokoje: idealne na sypialnie, salon czy gabinet (o powierzchni 27,7 m², 14,62 m² i 10,56 m²).
Jasna, oddzielna kuchnia: (7,38 m²).
Łazienka: (4,46 m²).
Przestronny przedpokój: (9,98 m²).
Dodatkowe atuty:
Klimatyzacja i alarm – zapewniają komfort i bezpieczeństwo.
Ogrzewanie miejskie – gwarantuje wygodę i niskie koszty.
Wymieniona stolarka okienna i drzwi wejściowe (zgodnie z zaleceniami konserwatora zabytków).
Piwnica o powierzchni ok. 10 m².
Balkon ok. 4 m².
Możliwość parkowania samochodu na podwórku.
Doskonała lokalizacja i infrastruktura
W promieniu zaledwie 300 metrów znajdziesz wszystko, czego potrzebujesz: restauracje, sklepy, kino, komisariat policji, a nawet szpital. Doskonała komunikacja miejska – tramwaje i autobusy – zapewnia szybki dojazd w każdą część Poznania. Mieszkanie idealnie sprawdzi się zarówno jako komfortowe miejsce do życia, jak i na prowadzenie biura, kancelarii lub gabinetu.
Dodatkowe informacje
Stan prawny: Pełna własność z księgą wieczystą.
Cena: Obniżka aż o prawie 60 000 zł! To wyjątkowa okazja cenowa.
Mieszkanie wolne od zaraz.
Serdecznie zapraszam do kontaktu w celu umówienia prezentacji!
Data dodania: 2025-10-01 09:32
Data modyfikacji: 2025-10-01 09:35


