plac Hallera | 52 m² | kamienica | po remoncie
cena: 959000 złMieszkanie Sprzedam
mazowieckie Warszawa Praga-Północ519 ... ... Pokaż numer
Wyślij wiadomość
Przytulne wnętrze w historycznej otulinie zabudowy socrealistycznej - zapraszam do zapoznania się z ofertą 3-pokojowego mieszkania.
Zlokalizowane w Warszawie przy placu Hallera - gotowe do zamieszkania.
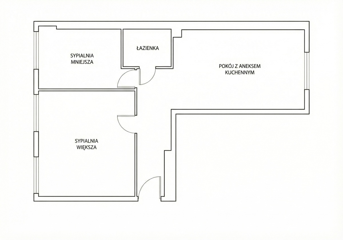
Urokliwe mieszkanie w kamienicy z 1954 roku oferuje przyjemny klimat i funkcjonalny rozkład.
Powierzchnia 51,66 m² pozwala na aranżację przestrzeni na co najmniej dwa sposoby:
kuchnię z salonem i dwie sypialnie
kuchnię z jadalnią, oddzielnym salonem i sypialnią.
Po gruntownym remoncie przeprowadzonym trzy lata temu mieszkanie zyskało współczesny komfort, nie tracąc przy tym uroku i autentycznego charakteru dawnych detali.
Cechy nieruchomości:
* Powierzchnia: 51,66 m²
* Liczba pokoi: 3
* Piętro: 1 z 6
* Stan: gotowe do wprowadzenia
* Drewniane podłogi
* Dwustronne
* Typ zabudowy: Kamienica
* Materiał budynku: Cegła
* Ogrzewanie i ciepła woda: CO miejskie i wodociąg
* Stan prawny: Własność
Ekspozycja:
- salon z kuchnią: południowy-zachód
- sypialnie: północny-wschód
Mieszkanie znajduje się w doskonale skomunikowanym miejscu - blisko przystanków komunikacji miejskiej. W okolicy znajdziesz liczne tereny zielone, sklepy oraz szkoły, które sprawiają, że jest to idealne miejsce do zamieszkania zarówno dla rodzin, jak i dla singli ceniących sobie wygodę i dostępność niezbędnych usług na wyciągnięcie ręki.
Brzmi interesująco? Zapraszam na prezentację.
Z przyjemnością opowiem Ci o potencjale tego mieszkania.
Dominika Hentosz-Barglik
-Hentosz Nieruchomości-
"Niniejsze ogłoszenie ma jedynie charakter informacyjny i nie stanowi oferty handlowej w rozumieniu art. 66 § 1 Kodeksu cywilnego."
Data dodania: 2025-12-30 13:52
Data modyfikacji: 2025-12-30 13:53


