2 pokoje - gotowe - bez PCC
cena: 499000 złMieszkanie Sprzedam
mazowieckie Warszawa Białołęka518 ... ... Pokaż numer
Wyślij wiadomość
Na sprzedaż nowe, 2-pokojowe mieszkanie w stanie deweloperskim, położone na 1. piętrze w gotowej inwestycji przy ul. Ostródzkiej 123 w Warszawie (Białołęka/Targówek). Budynek znajduje się w 4 linii zabudowy od ulicy, co zapewnia większy spokój i ograniczony hałas.
Mieszkanie jest już oddane do użytkowania – można od razu wykończyć i mieszkać. Pokoje są dobrze doświetlone i ustawne – z miejscem na szafę, stół jadalny i wszystkie inne niezbędne meble i sprzęty.
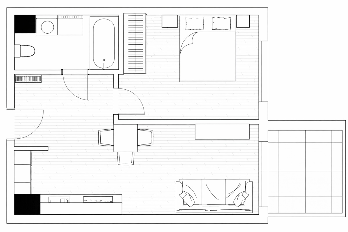
Układ:
Na powierzchni 36,98 m2 mamy:
Salon z aneksem – 18,11 m²
Sypialnia – 10,29 m²
Łazienka – 4,48 m²
Przedpokój – 4,20 m²
Balkon – 4,57 m²
Miejsce postojowe:
Miejsce postojowe w garażu podziemnym – dodatkowo płatne 40 000 zł
Zlokalizowane blisko klatki schodowej – wygodny dostęp, pojedyncze miejsce zapewniające większy komfort parkowania.
Lokalizacja:
Osiedle położone na granicy dzielnic Białołęka i Targówek – dobra komunikacja z centrum oraz szybki wyjazd z miasta.
2 minuty pieszo do przystanku autobusowego
Szybki dojazd do trasy S8 i Trasy Toruńskiej
Ok. 10 km do centrum Warszawy
8 minut samochodem do CH Atrium Targówek
10 minut samochodem do Lasu Bródnowskiego
8 minut rowerem nad Kanał Żerański
18 minut spacerem do Parku Magiczna
W pobliżu: Biedronka, Lidl, CH M1, IKEA, apteka, poczta, przedszkole, piekarnia, przychodnie oraz tereny rekreacyjne.
Forma własności Mieszkanie sprzedawane w formie cesji praw z umowy deweloperskiej.
Możliwość szybkiego przejęcia i rozpoczęcia prac wykończeniowych.
Klucze w biurze – możliwość oglądania o dowolnej porze po wcześniejszym kontakcie.
Serdecznie zapraszam na prezentację!
Data dodania: 2026-02-24 20:38
Data modyfikacji: 2026-02-24 20:45


