Mieszkanie 46m Elektoralna Warszawa Wola
cena: 789000 złMieszkanie Sprzedam
mazowieckie Warszawa Wola
Kontakt
662 ... ... Pokaż numer
662 ... ... Pokaż numer
Wyślij wiadomość
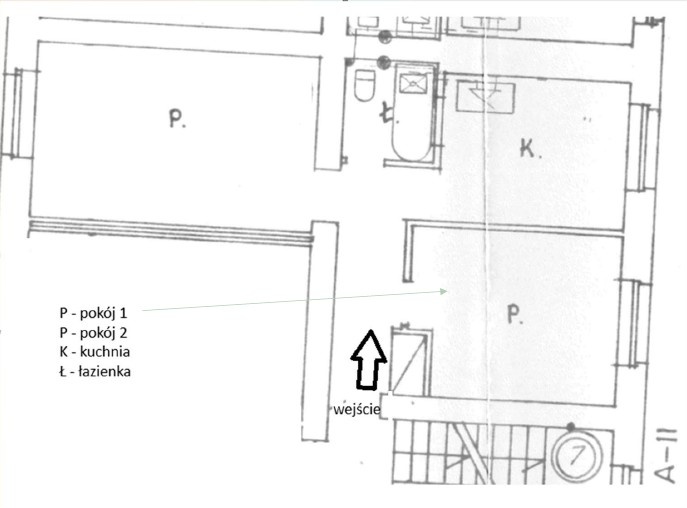
Sprzedam mieszkanie 46m w odnowionej kamenicy.
Mieszkanie składa się z
2 pokoje
osobna kuchnia ( możliwość połączenia z 1 pokojem w formie aneksu )
łazienka
korzytarz
Do mieszkania przynależy komórka lokatorska
OKAZJA! W tej okolicy nie ma ofert.
Świetna lokalizacja komunikacyjnie.
Mieszkanie do odnowienia - pierwsze 4 zdjęcia to propozycja wizualna bez mebli i po odmalowaniu
Data dodania: 2026-04-24 15:14
Data modyfikacji: 2026-04-25 15:27


