Nowoczesny dom, ogródek ,garaż, taras na IIp
cena: 1599000 złDom Sprzedam
mazowieckie Warszawa Wawer794 ... ... Pokaż numer
Wyślij wiadomość
Kup bezpośrednio od dewelopera — bez prowizji, bez pośredników!
Budowa zakończona IV kwartał 2025 z uzyskanym pozwoleniem na użytkowanie od lutego 2026
Nowoczesne kameralne osiedle w zielonej dzielnicy Wawer-Las które składa się z
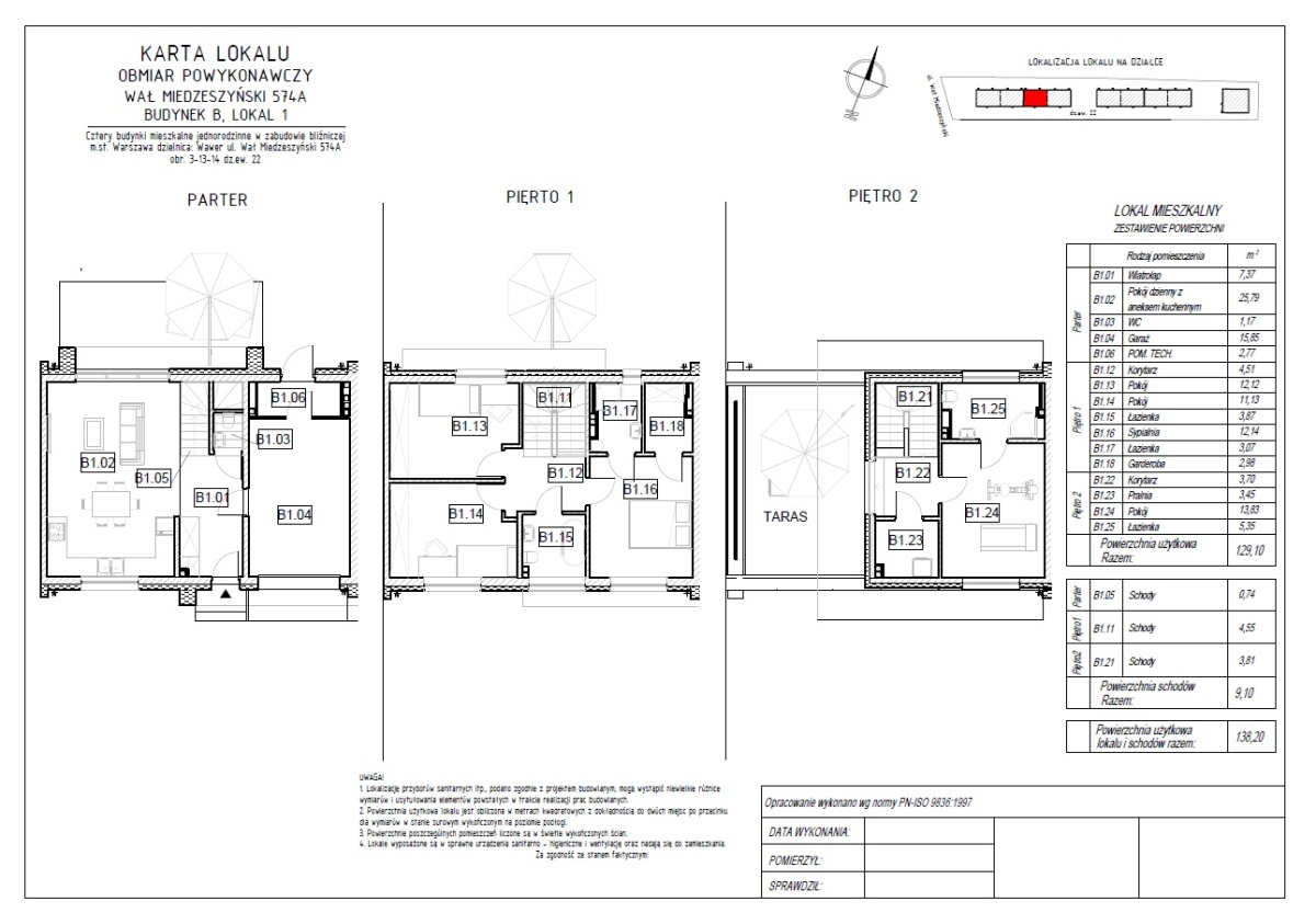
2 domów w zabudowie bliźniaczej po 4 lokale 3 kondygnacyjne w każdym oraz dom jednorodzinny wolnostojący
Zamieszkaj przy ul. Wał Miedzeszyński 574 — w miejscu, gdzie natura spotyka wygodę miejskiego życia, skąd
1 minuta spacerem do 3 przystanków autobusowych
1 minuta i masz dostęp do ścieżki pieszo-rowerowej nad Wisłą a tamtędy w prawo na Saską Kępę , Stadion Narodowy, Stare Miasto bądź w lewo na plażę Romantyczną, zielone tereny Józefowa lub ....
Tylko 900 m do Trasy Siekierkowskiej
W pobliżu - do 500 metrów od osiedla znajdziesz :
przedszkole,
szkołę podstawową,
nową Biedronkę,
piekarnię Grzybki,
sklep Sokołów,
Żabkę,
pocztę
Dlaczego warto kupić dom na osiedlu ?
Nowoczesna architektura, wysoki standard materiałów oraz staranność wykończenia
Osiedle składa się z domów zaprojektowanych z myślą o estetyce i funkcjonalności, przestrzeni i komforcie gdzie deweloper nie szedł na kompromisy i oszczędności.
Dom oferuje:
Wysokość pomieszczeń na każdej z 3 pełnoprawnych kondygnacji ~ 2,9m,
5 przestronnych pokoi w tym salon z aneksem kuchennym,
3 łazienki ,
WC,
Garaż w bryle budynku,
Dodatkowe miejsce postojowe z boku domu w cenie
Kotłownię,
Pralnię
Ogródek na parterze,
Taras na II piętrze z widokiem na panoramę miasta
Bezpieczeństwo i technologia:
Rozbudowana sieć komputerowa z zaszytą szafa RACK - po 2 punkty komputerowe w każdym pokoju,
Gniado TV w każdym pokoju
Dodatkowe 2 punkty LAN pod WiFi,
Światłowód w domu i a na osiedlu ( operator światłowodowy)
Ogrodzone osiedle z monitoringiem kamerowym
Wideodomofon przy wejściu na osiedle oraz przed każdym domem zamiast tradycyjnego dzwonka
Instalacja alarmowa
Rekuperacja — czyste powietrze i niższe rachunki
Ogrzewanie podłogowe w całym domu
Materiały użyte do budowy domów są najwyższej jakości:
Porotherm Wienerberger,
Okna SONAROL Perfectherm z tzw. ciepłym montażem,
Izolacje SOPREMA, elewacja Austrotherm (λ = 0,31),
Elewacja - tynk szwajcarskiej marki KABE
Osprzęt elektryczny SCHRACK TECHNIK (Austria)
Kostka brukowa Semmelrock
Dom w stanie deweloperski — gotowy do wykończenia przez nabywcę
Media: gaz, woda, szambo , prąd
Budowa zakończona z pozwolenie na użytkowanie od lutego 2026
Zadzwoń już dziś i umów się na spotkanie i obejrzyj swój nowy wymarzony dom!
Data dodania: 2026-04-02 11:41
Data modyfikacji: 2026-04-02 11:42


