Rezydencja z ogrodem przy Parku Krajobrazowym
cena: 3800000 złDom Sprzedam
mazowieckie Warszawa Wesoła501 ... ... Pokaż numer
Wyślij wiadomość
Sprzedam prywatnie, bezpośrednio, bez prowizji, bezczynszowy, wolnostojący dom z garażem w cichej i zielonej okolicy.
.
Dom wyposażony jest w instalację alarmową, oraz w automatyczną, segmentową, szczelną, izolowaną termicznie bramę garażową HORMANN z naświetlem KALWALL. Ponadto balustrady zewnętrzne z egzotycznego drewna MERBAU. Spalinowy komin ze stali kwasoodpornej. Budynek formalnie zgłoszony po zakończeniu budowy, oraz z kompletem aktualnych badań okresowych i świadectwem charakterystyki energetycznej SCHE/37435/1/2024. Dom ma następujące kondygnacje:
.
Poddasze użytkowe z antresolą i z oknami w dachu 42 m2,
Piętro z tarasem 100 m2,
Parter z kominkiem 110 m2,
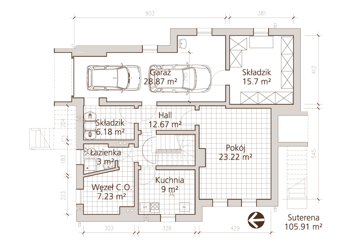
Suterena z garażem dwustanowiskowym 106 m2.
.
Zaletą domu jest duży 52 mkw otwarty salon z kominkiem, wielkość domu i możliwość wydzielenia odrębnych lokali mieszkalnych, oraz wielowarstwowe izolowane termicznie ściany murowane z cegły ceramicznej.
.
W bezpośrednim sąsiedztwie domu znajdują się pielęgnowany ogród i dużo zieleni, oraz Mazowiecki Park Krajobrazowy,
.
150 m do Mazowiecki Park Krajobrazowy,
.
220 m do przystanku autobusowego 502, 411, 198, 147, 173, N21,
.
2 km dojazd do obwodnicy Warszawy,
.
5 km dojazd do autostrady A2,
.
6 km dojazd do ogromnego centrum handlowego Góraszka w budowie z aquaparkiem, kinem, parkiem handlowym, outletem, hipermarketem Auchan , marketem DIY, sklepem budowlanym Leroy Merlin,
.
podana cena zawiera dwie działki po 500 m zabudowaną i niezabudowaną. Każda działka posiada swój własny dojazd z ulicy, oraz odrębną księgę wieczystą. Nieruchomość można kupić taniej tylko z działką zabudowaną za cenę o 1m niższą.
Data dodania: 2026-04-11 19:33
Data modyfikacji: 2026-04-12 19:57


