Piaseczno | Lokal usługowy |165,9m2| ul.Albatrosów
cena: 359987 złKomercja Sprzedam
mazowieckie Piaseczno785 ... ... Pokaż numer
Wyślij wiadomość
Zobacz lokal bez wychodzenia z domu!
Zapraszamy na wirtualny spacer dostępny pod linkiem (skopiuj i wklej do przeglądarki): sb360.online/znkvjs
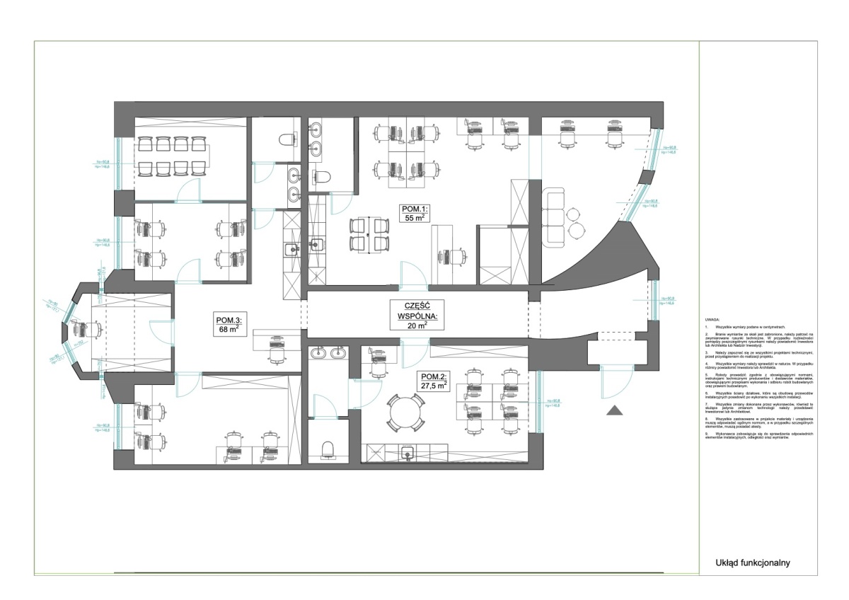
Lokal usługowy 165,9 m² – Piaseczno, ul. Albatrosów 24C
Z dużym potencjałem – możliwość podziału na 3 niezależne lokale!
Na sprzedaż przestronny lokal użytkowy o powierzchni 165,9 m², usytuowany w podpiwniczeniu budynku mieszkalnego przy ul. Albatrosów 24C w Piasecznie. To doskonała propozycja dla inwestora, przedsiębiorcy lub każdego, kto szuka przestrzeni z ogromnym potencjałem aranżacyjnym.
Dlaczego warto?
• 165,9 m² powierzchni do dowolnej aranżacji
• Możliwość wydzielenia trzech niezależnych lokali użytkowych na jednej księdze wieczystej
• Wejście z poziomu -1 (podpiwniczenie)
• Stan prawny: pełna własność
• Media: woda, kanalizacja, prąd
• Budynek z 1999 roku, zadbane osiedle z ogólnodostępnym parkingiem
• Czynsz do wspólnoty: ok. 800 zł
• Brak centralnego ogrzewania – pełna swoboda w wyborze źródła ciepła
W galerii zdjęć dostępne są przykładowe układy funkcjonalne, które pokazują, jak różnorodnie można zaaranżować tę przestrzeń.
Masz pomysł na biznes? A może szukasz przestrzeni do wynajmu?
Ten lokal daje Ci elastyczność, jakiej potrzebujesz.
Skontaktuj się z nami – chętnie udzielimy szczegółowych informacji i umówimy prezentację.
Do ceny należy doliczyć prowizję biura nieruchomości w wysokości 3%.
Data dodania: 2025-04-11 15:13
Data modyfikacji: 2025-10-27 15:45


