Sosnowiec: lokal handlowo-usługowy o pow. 47,5m2
cena: 300000 złKomercja Sprzedam
śląskie Sosnowiec Pogoń
Kontakt
505 ... ... Pokaż numer
505 ... ... Pokaż numer
Wyślij wiadomość
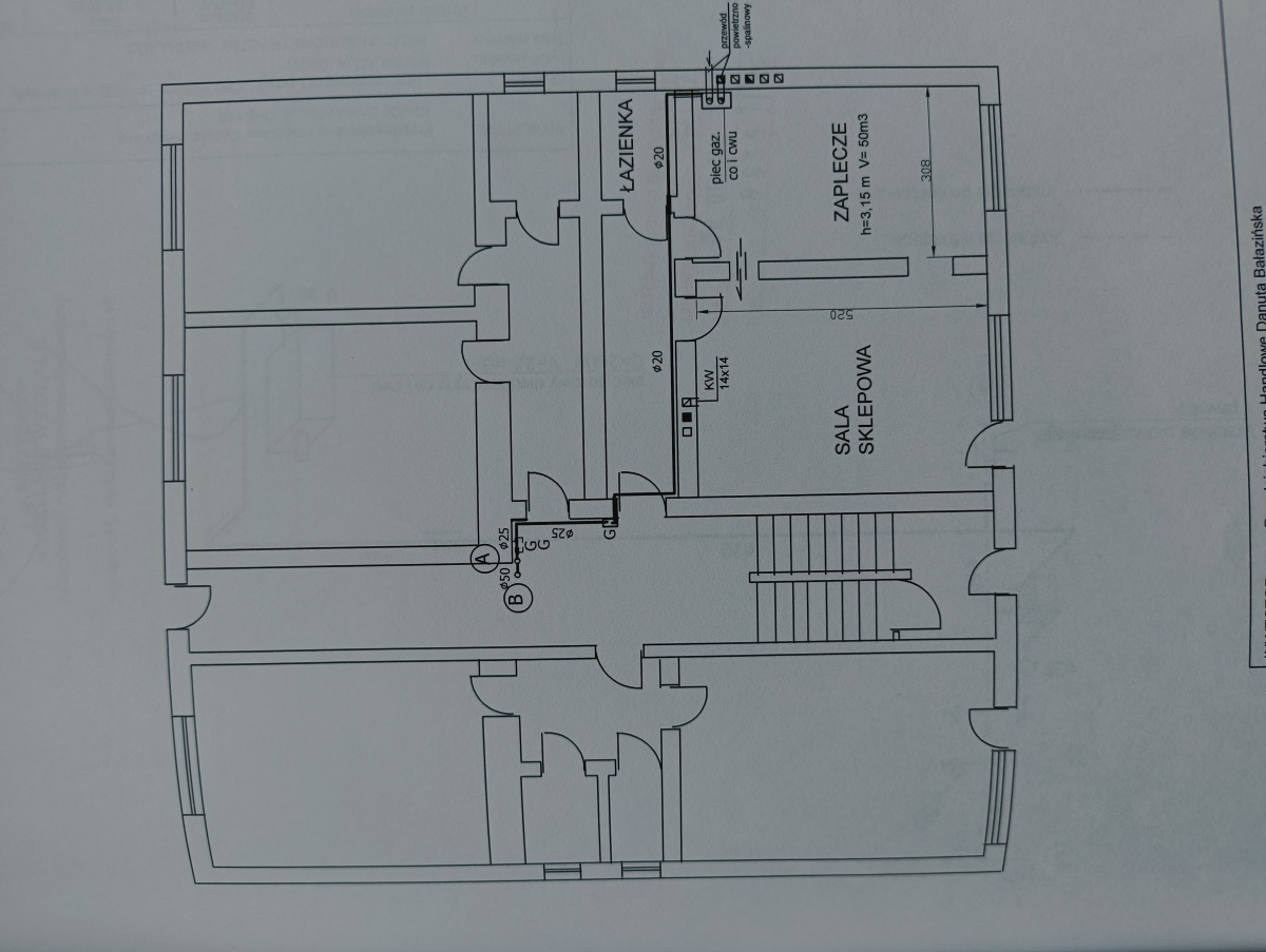
Sprzedam lokal handlowo-usługowy w Sosnowcu, centrum dzielnicy Pogoń z wejściem głównym od ulicy. Lokal składa się z pomieszczenia głównego (sklep), zaplecza, WC, i przedpokoju.
Ogrzewanie gazowe
Powierzchnia całkowita 47,50m2 + piwnica 14,50m2
Tuż obok znajduje się zatoka parkingowa dla samochodów
Data dodania: 2025-12-17 21:00
Data modyfikacji: 2025-12-17 21:01


