handlowo-usługowy Katowice Jagiellońska 21
cena najmu: 3900 złKomercja Wynajmę
śląskie Katowice485 ... ... Pokaż numer
Wyślij wiadomość
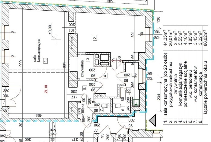
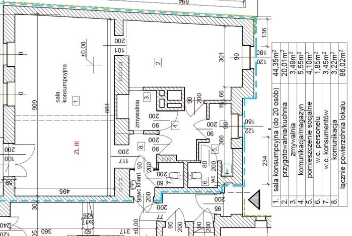
Do wynajęcia lokal użytkowy mający status "handlowo-usługowy" w Katowicach ul. Jagiellońska 21/1. Powierzchnia całkowita około 86 m2, na parterze kamienicy przylegającej do budynku uniwersytetu, z wejściem od ruchliwej ulicy i drugim wejściem od klatki schodowej i podwórza.
W pobliżu są: Plac Sejmu Śląskiego (z dużym parkingiem), Urząd Wojewódzki i liczne inne urzędy, instytucje, firmy itp.
Posiada: ogrzewanie podłogowe dwusekcyjne, klimatyzację chłodząco-grzejącą (pompa cieplna powietrzna), kurtynę powietrzną 6 kW z zimnym lub ciepłym powietrzem, wentylację grawitacyjną i mechaniczną (dwie rury stalowe wyprowadzone w szachcie ponad dach), prąd trójfazowy (siła) z przyłączem o mocy od 17,4 do 40 kW, gaz z sieci miejskiej (obecnie odłączony).
Lokal działał od 1996 r. jako salon firmowy "OPTIMUS" ze sprzedażą i serwisem sprzętu komputerowego, sieci komputerowych, telefonii komórkowej i kas fiskalnych, a od 2009 do 2020 r. jako lokal gastronomiczny, w tym od 2013 do 2020 r. jako Bistro 8 Stolików.
Proponowana cena miesięcznego najmu: 3900 zł (zwolnione z VAT).
Cena ta nie obejmuje kosztów mediów.
Obecnie w lokalu działa Fundacja Dobre Miejsce Katowice, która jest chętna kontynuować najem i przyjąć inny podmiot na podnajem części lokalu, za cenę proporcjonalną do zajętej powierzchni.
Kontakt: prosimy najpierw przysłać SMS z tekstem LOKAL i wówczas oddzwonimy (inne telefony odrzucamy).
Data dodania: 2025-12-13 17:12
Data modyfikacji: 2025-12-13 17:16


