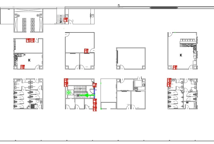
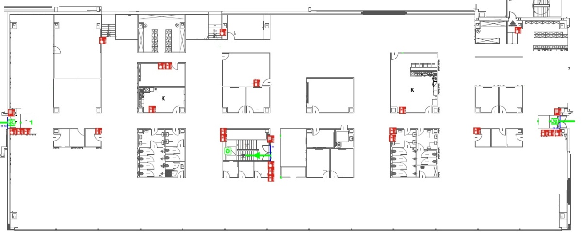
Lokal biurowy o powierzchni 2.450,30 m²
cena najmu: 104397 złKomercja Wynajmę
małopolskie Kraków Podgórze604 ... ... Pokaż numer
Wyślij wiadomość
Wynajem bezpośrednio od właściciela, bez pośrednika, bez prowizji.
Do wynajęcia lokal biurowy o powierzchni 2.450,3 m2, zlokalizowany na I piętrze biurowca na ul. Wadowickiej 6. Lokal składa się z bardzo dużej powierzchni typu open space, dwóch kuchni, pięciu łazienek, jednego prysznica, dwóch szatni oraz 23 pomieszczeń o różnej wielkości.
Udogodnienia:
- wygodny dojazd MPK
- możliwość wynajęcia miejsc parkingowych
- ochrona + monitoring nieruchomości
- sprzątanie części wspólnych
- odśnieżanie chodników i parkingów
- infrastruktura teleinformatyczna
- recepcja
- w budynku sklep spożywczy, drogeria, apteka, sklep komputerowy, poczta, siłownia, przedszkole
Pow. 2.450,3 m2
Czynsz: 5 EUR/m2 + opłata eksploatacyjna: 21,50 PLN/m2
Długość umowy: minimum 1 rok, maksymalnie do końca 2028 roku.
Lokal dostępny od zaraz.
Data dodania: 2026-01-12 13:12
Data modyfikacji: 2026-04-10 14:56


