Gastronomia 230 m² – szkoły, firmy, duży ruch
cena najmu: 12650 złKomercja Wynajmę
dolnośląskie Wrocław Fabryczna733 ... ... Pokaż numer
Wyślij wiadomość
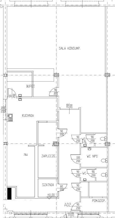
Do wynajęcia lokal gastronomiczny o łącznej powierzchni 230 m², przystosowany do prowadzenia działalności gastronomicznej. Nieruchomość obejmuje ergonomiczną przestrzeń kuchenną oraz otwartą przestrzeń do serwowania posiłków z miejscem do wydawania dań (lada barowa). Lokal posiada pełne zaplecze sanitarne i socjalne.
Lokalizacja – stały przepływ klientów
Lokal znajduje się w budynku, w którym funkcjonuje 5 szkół (w tym 3 szkoły średnie) oraz kilkanaście firm, co generuje codzienny ruch potencjalnych klientów.
Naprzeciwko zlokalizowany jest duży zakład produkcyjny Alstom, a w
weekendy w okolicy przebywają studenci. Bardzo dobre miejsce pod działalność gastronomiczną – lunch, dania dnia, bistro, kantyna, street food, restauracja.
Standard i wyposażenie lokalu gastronomicznego:
- system wentylacji spełniający wymagania Sanepidu
- nowy zewnętrzny separator tłuszczu
- przyłącze elektryczne dużej mocy
- pełne zaplecze sanitarne i socjalne
- możliwość dowolnej aranżacji przestrzeni
- układ funkcjonalny pod działalność gastronomiczną
Warunki najmu:
- czynsz: 55 zł / m² netto
- opłata eksploatacyjna: 10 zł / m² netto
- media: według zużycia
Lokal gastronomiczny dostępny od zaraz.
Oferta od właściciela – Najemca nie płaci prowizji.
Zapraszam na prezentację.
Data dodania: 2026-02-13 17:02
Data modyfikacji: 2026-02-13 17:04


