Duża kawalerka bez barier architektonicznych
cena: 419000 złMieszkanie Sprzedam
małopolskie Kraków Nowa Huta536 ... ... Pokaż numer
Wyślij wiadomość
Polecam mieszkanie znakomite dla osoby z problemami z poruszaniem się. Starszej lub inwalidy. Osoby z małym dzieckiem. Niski parter-nie suterena.
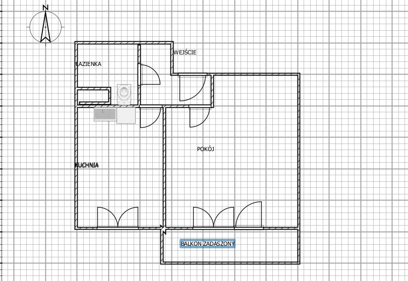
Dostęp do mieszkania bez barier architektonicznych. Żadnych schodów.
Mieszkanie ma pow. 37 m2 na co składa się duży pokój ( ok. 22 m2 ) z wnęką i wyjściem na całkiem duży balkon z zadaszeniem i odgrodzony od sąsiedniego balkonu.
Kuchni pow. ok. 9 m2 z dużym oknem, przedpokoju i łazienki.
Mieszkanie do remontu.
Adres : os. Bohaterów Września nr.3.
Budynek po termomodernizacji z nową ładną elewacją.
Obok budynku 4 różne paczkomaty i centrum handlowe - Aldi oraz PEPKO. Obok różne punkty usługowe, szkoły, przedszkola itp.
Dla mieszkańców bloku wydzielony duży parking z wjazdem na pilota.
W zasięgu 5-6 minut spacerem przystanki tramwajowe linii: 14, 21, 52 ( niedługo będzie oddane szybkie połączenie z Krakowem bezpośrednio nie tylko przez Nową Hutę).
Przystanki autobusowe linii : 132, 139, 182, 198 oraz linie nocne :601 oraz 664.
Szybki wyjazd na obwodnice Krakowa S7 i E77.
Obok bloku duży park do spacerów i odpoczynku.
Jest to naprawdę bardzo wygodne miejsce do życia jak również pod wynajem.
Cena 419 000 zł
Kontakt:
Dorota Longa
tel.: 536#546#200
Lic.zaw.5772
Biuro Obrotu Nieruchomościami Optimal Investment Paulina Wojciechowska-Pawlik
ul. Szlak 77/222, 31-153 Kraków
Prezentacja bezpłatna po uprzednim podpisaniu umowy pośrednictwa.
Niniejsze ogłoszenie nie stanowi oferty w rozumieniu przepisów Kodeksu Cywilnego oraz innych właściwych przepisów prawnych, a dane w niej zawarte mają jedynie charakter informacyjny.
Wszelkie dane dotyczące nieruchomości uzyskano na podstawie oświadczeń sprzedających. Zalecamy osobiste zapoznanie się ze stanem nieruchomości przed jej nabyciem.
Nasz doradca kredytowy jest do Państwa dyspozycji
Data dodania: 2025-12-12 21:17
Data modyfikacji: 2025-12-12 21:20


