Świeżo wykończone mieszkanie na os. Piastów
cena: 774108 złMieszkanie Sprzedam
małopolskie Kraków Nowa Huta660 ... ... Pokaż numer
Wyślij wiadomość
Sprzedam bezpośrednio, bez agencji.
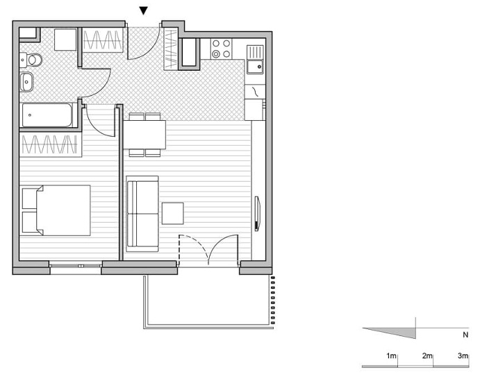
Mieszkanie 2-pokojowe, znajdujące się na osiedlu Piastów.
Lokalizacja: os. Piastów 76
Powierzchnia: 42,04 m2
Pietro: 7
Rok budowy: 2024
Winda w budynku: dwie
Ogrzewanie: Miejskie
Pomieszczenia:
- Hol 5,72 m2
- Salon z aneksem kuchennym 21,36 m2,
- Sypialnia 10,68 m2,
- Łazienka 4,28 m2.
- Balkon 4,79 m2
Świeżo wykończone, gotowe do zamieszkania.
Kuchnia wyposażona jest w nowe meble i sprzęt AGD:
- Płyta indukcyjna ELECTROLUX EIV634 SLIM-FIT
- Zmywarka ELECTROLUX EEA43200L QuickSelect 600 45 cm
- Piekarnik ELECTROLUX EOF3C50H SurroundCook 600 Elektryczny Czarny A
- Lodówka Electrolux TwinTech No Frost 600 CustomFlex
- Okap ELECTROLUX LFG716W Biały 580m3/h 67dB klasa A Zdalne sterowanie
- Zlewozmywak granitowy z ociekaczem PYRAMIS + bateria + wkładka ociekowa + dozownik
Nowa armatura w łazience:
- Wanna z prysznicem
- Umywalka z szafką
- WC
Podwieszany sufit w łazience. Podłoga z paneli winylowych.
Mieszkanie w bardzo dobrej lokalizacji:
- przystanki MPK, najbliższa pętla tramwajowa 700 m / 10 min
- stacja kolejowa Kraków Piastów - 600m / 8 minut (7 minut do stacji Dworzec Główny)
- osiedle znajduje się przy północnej obwodnicy Krakowa - 650 m / 2 min samochodem
W okolicy:
żabka - 450 m
żłobek - 250 m
lidl - 600 m
biedronka - 600 m
restauracja - 550 m
piekarnia - 500 m
market point - 650 m
Informacje dla agencji nieruchomości - nie rozważam współpracy, nie przewiduję prowizji dla agencji.
*
For sale directly by owner, no agency.
A 2-room apartment located in the Piastów housing estate.
Location: os. Piastów 76
Area: 42.04 m²
Floor: 7
Year of construction: 2024
Elevators in building: two
Heating: district heating
Layout:
Hall – 5.72 m²
Living room with kitchen – 21.36 m²
Bedroom – 10.68 m²
Bathroom – 4.28 m²
Balcony - 4.79 m²
Recently finished and ready to move in.
The kitchen is equipped with new furniture and household appliances:
- Induction hob ELECTROLUX EIV634 SLIM-FIT
- Dishwasher ELECTROLUX EEA43200L QuickSelect 600, 45 cm
- Oven ELECTROLUX EOF3C50H SurroundCook 600, electric, black, energy class A
- Refrigerator Electrolux TwinTech No Frost 600 CustomFlex
- Cooker hood ELECTROLUX LFG716W, white, 580 m³/h, 67 dB, energy class A, remote control
- Granite sink with drainer PYRAMIS + faucet + draining insert + soap dispenser
New bathroom fittings:
- Bathtub with shower
- Washbasin with cabinet
- Toilet
Suspended ceiling in the bathroom. Vinyl panel flooring.
Excellent transport connections:
- Bus stops nearby, tram terminus 700 m / 10 min
- Kraków Piastów train station – 600 m / 8 min
- Located near the northern ring road of Kraków – 650 m / 2 min by car
Nearby amenities:
Żabka – 450 m
Nursery – 250 m
Lidl – 600 m
Biedronka – 600 m
Restaurant – 550 m
Bakery – 500 m
Market Point – 650 m
Data dodania: 2026-03-29 13:05
Data modyfikacji: 2026-03-29 13:07


