Dwupoziomowe 73 m² 2 tarasy garaż bez pośredników
cena: 970000 złMieszkanie Sprzedam
podkarpackie Rzeszów696 ... ... Pokaż numer
Wyślij wiadomość
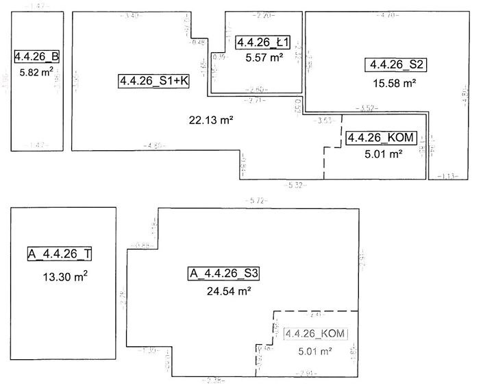
Na sprzedaż komfortowe i funkcjonalne mieszkanie o powierzchni 73 m², położone w nowoczesnym kompleksie Capital Towers. Lokal jest gotowy do zamieszkania i stanowi idealną propozycję dla osób ceniących wygodę życia w centrum nowoczesnej infrastruktury miejskiej.
Najważniejsze atuty nieruchomości
# dwupoziomowe mieszkanie – wygodny i funkcjonalny układ
# 2 łazienki – komfort dla domowników i gości
# 2 tarasy o łącznej powierzchni 19 m² – idealne miejsce do wypoczynku
# ekspozycja północ–południe – dobre doświetlenie mieszkania
# 4 piętro z windą
# miejsce postojowe w garażu podziemnym w cenie
Dużym udogodnieniem jest winda prowadząca bezpośrednio do dwupoziomowego parkingu podziemnego, dzięki czemu można wygodnie dostać się z mieszkania do samochodu.
Inwestycja Capital Towers
Kompleks składa się z trzech nowoczesnych budynków o wysokości 8 kondygnacji, wyróżniających się nowoczesną architekturą i wysokim standardem wykonania. Inwestycja została zaprojektowana z myślą o komforcie mieszkańców.
Na parterach budynków znajdują się liczne lokale usługowe, m.in.:
• sklepy
• restauracje i kawiarnie
• piekarnie i cukiernie
• salony urody oraz inne punkty usługowe
Dzięki temu wiele codziennych spraw można załatwić bez opuszczania terenu osiedla.
** Stan prawny **
Mieszkanie jest pełną własnością i nie posiada obciążonej hipoteki.
Sprzedaż odbywa się bezpośrednio od właściciela, co oznacza brak dodatkowych kosztów prowizji.
# Uprzejma prośba do agentów nieruchomości o niekontaktowanie się w sprawie współpracy #
ZADZWOŃ,ZOBACZ, ZDECUDUJ SAM
Data dodania: 2026-03-16 07:52
Data modyfikacji: 2026-03-16 07:56


