2 pokoje na Bielanach
cena: 489000 złMieszkanie Sprzedam
mazowieckie Warszawaoferta archiwalna
OFERTA AGENCJI
Na sprzedaż mieszkanie o powierzchni 50 m przy ul. Rodziny Połanieckich (Bielany). Do metra około 20 min. piechotą.
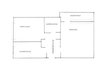
Na mieszkanie składają się:
-Pokój - 13,4 m2
-Salon – 20 m2
-Łazienka - 4 m2
-Oddzielna kuchnia - 8 m2
-Przedpokój – 5,1 m2
-Balkon typu loggia – 4 m2
Balkon od strony południowej.
Okna w sypialni i kuchni od strony zachodniej.
Rok budowy: 1975
W kuchni AGD w zabudowie - piekarnik, kuchenka gazowa, zmywarka, zlewozmywak
W łazience - wanna, umywalka, pralka.
WSZYSTKIE MEBLE I SPRZĘTY ZOSTAJĄ W MIESZKANIU.
Dodatkowo do lokalu przynależy piwnica o powierzchni 2,5 m.
Mieszkanie spółdzielcze z KW.
Czynsz: 675 zł
W budynku wymienione instalacje i zrobiona termomodernizacja.
Oferta agencji. Do ceny należy doliczyć prowizję 2% + VAT.
Data dodania: 2022-07-25 09:56
Data modyfikacji: 2022-08-09 05:50


