WOLA KOPCOWA - 2 poziomowe mieszkania z ogródkami
cena: 554000 złDom Sprzedam
świętokrzyskie Masłów501 ... ... Pokaż numer
Wyślij wiadomość
Spełnij marzenia o własnym mieszkaniu ❤️
W styczniu 2025 r. rozpoczęliśmy budowę nowoczesnego osiedla SŁONECZNA WOLA na przedmieściach Kielc, wśród pięknych krajobrazów gór świętokrzyskich, tylko 5 min. do miasta.
TANIEJ niż w mieście
CENY MIESZKAŃ na naszym osiedlu są o około 3500 zł niższe od średniej ceny mieszkań w samych Kielcach, która wynosi 10900 zł!
W ofercie posiadamy 2 wielkości mieszkań:
- cena 554 tys.zł mieszkanie 4-pokojowe /75,89m2
- cena 672 tys.zł mieszkanie 5-pokojowe /90,49m2
W cenie: 2-poziomowe mieszkanie, ogródek, taras oraz strych.
Dedykowane miejsca parkingowe przed wejściem (dodatkowo płatne 20 tys./1 miejsce).
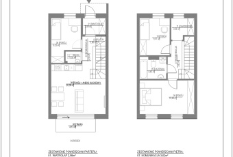
Na parterze CZĘŚĆ DZIENNA:
- salon z kuchnią
- pokój
- toaleta
Na piętrze CZĘŚĆ PRYWATNA:
- sypialnia
- garderoba
- pokój (1 lub 2)
- duża łazienka
Dokładne wielkości pomieszczeń na rzutach.
Osiedle SŁONECZNA WOLA to gotowy plan na komfortowe miejsce do życia:
- przemyślane mieszkania o nowoczesnym układzie pomieszczeń
- duża i wygodna przestrzeń mieszkalna z 4 lub 5 pokojami
- w większym mieszkaniu jest miejsce na montaż prawdziwego kominka
- piętra mieszkań nie mają skosów, wysokość pomieszczeń 260 cm
- brak opłat czynszowych i wysokich opłatach administracyjnych
- niższe koszty eksploatacji dzięki mniejszym działkom, zabudowie szeregowej oraz zastosowanym rozwiązaniom technologicznym
- duże przeszklenia, nowoczesny taras, prywatny ogródek oraz duży strych nad mieszkaniem
- miejsca parkingowe przed wejściem do budynków - wygodne wnoszenie codziennych zakupów
PLAN NA CODZIENNE SZCZĘŚCIE
Wierzymy, że dom to coś więcej niż cztery ściany – to przestrzeń, która daje spokój, wygodę i poczucie, że można się realizować. Codzienna logistyka pomiędzy pracą, szkołą, zakupami – jest szczególnie ważna gdy na co dzień brakuje dodatkowego wsparcia. Lokalizacja motywująca do aktywnego wypoczynku np. spacery z psem lub jogging, rower w plenerze.
TECHNOLOGIA BUDOWY
- konstrukcja: budynki w technologii tradycyjnej – murowanej
- izolacje: ściany zewnętrzne ocieplone styropianem, wykonana izolacja - przeciwwilgociowa fundamentów
- stropy: żelbetowe, monolityczne
- dach: dwuspadowy, pokrycie blachą płaską na rąbek
- schody wewnętrzne żelbetowe
- stolarka okienna: okna PCV zespolone, 3-szybowe, z nawiewnikami
- drzwi wejściowe: antywłamaniowe
- możliwość dopasowania układu i funkcji pomieszczeń do indywidualnych potrzeb w trakcie budowy.
WYKOŃCZENIE MIESZKAŃ
- stan deweloperski
- tynki wewnętrzne przygotowane do malowania
- posadzki gotowe pod montaż paneli, płytek itp.
- instalacje gotowe pod użytkowanie: elektryczna (gniazda, wyłączniki, rozdzielnia); wodna i kanalizacyjna (z przyłączami do urządzeń sanitarnych); gazowa: z piecem dwufunkcyjnym
- światłowód, wyprowadzone punkty przyłączeniowe
- ogrzewanie: indywidualne gazowe, piec dwufunkcyjny z zamkniętą komorą spalania
- strych: nad całym mieszkaniem, nieużytkowy, z możliwością adaptacji.
ZAGOSPODAROWANIE ZEWNĘTRZNE
- całe osiedle będzie ogrodzone
- droga wewnętrzna z bramą na pilota
- gotowe ogrodzenia wokół ogródków
- na terenie osiedla będzie znajdował się plac zabaw i siłownia plenerowa
Liczba dostępnych mieszkań jest ograniczona dlatego nie czekaj, zadzwoń, przyjedź na budowę – zakochasz się w tym miejscu.
Kontakt tel. 501 454 299
Data dodania: 2025-10-10 11:16
Data modyfikacji: 2025-11-21 12:11


