2/3 pokoje, kuchnia ze spiżarnią, ogródek, do rem.
cena: 250000 złMieszkanie Sprzedam
śląskie Dąbrowa Górnicza
Kontakt
501 ... ... Pokaż numer
501 ... ... Pokaż numer
Wyślij wiadomość
SPRZEDAŻ PRYWATNA (bez prowizji)
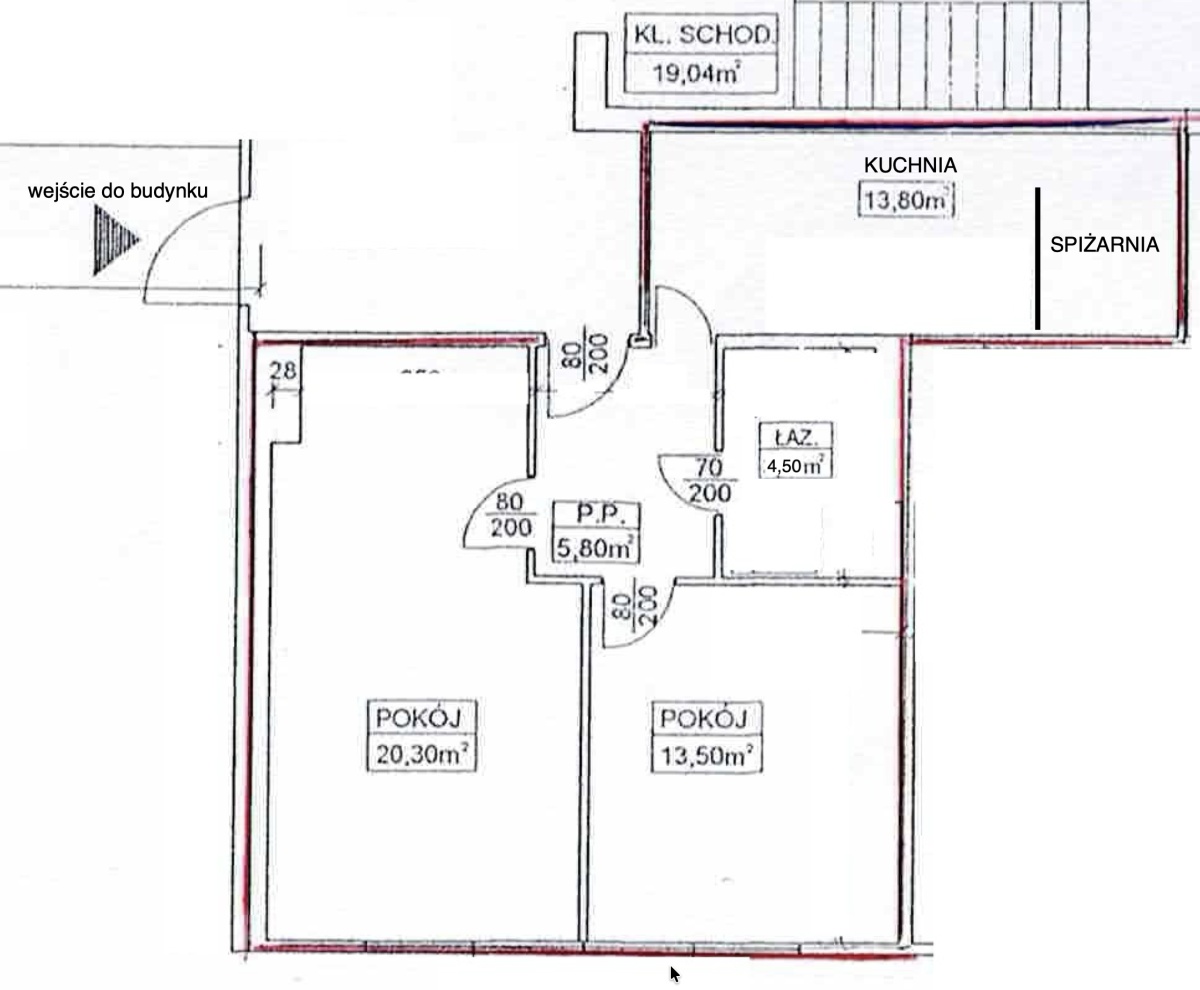
Mieszkanie do remontu na parterze budynku z bardzo łatwym dostępem dla osób niepełnosprawnych. Powierzchnia mieszkalna to 60m2, na które składają się kuchnia ze spiżarnią, przedpokój, łazienka i obecnie trzy pokoje. Pierwotnie mieszkanie było dwupokojowe lecz jeden z pokoi został podzielony na dwa (jeden bez okna służył jako duża garderoba). Ściankę działową można w łatwy sposób usunąć. Oglądanie możliwe każdego dnia.
Data dodania: 2026-03-19 12:50
Data modyfikacji: 2026-03-25 11:45


