3 pokojowe mieszkanie - ul. Marymoncka- do remontu
cena: 720000 złMieszkanie Sprzedam
mazowieckie Warszawa Bielany791 ... ... Pokaż numer
Wyślij wiadomość
OFERTA BIURA NIERUCHOMOŚCI COSQUARE
Mieszkanie do generalnego remontu w niskiej cenie.
◆ Co warto wiedzieć
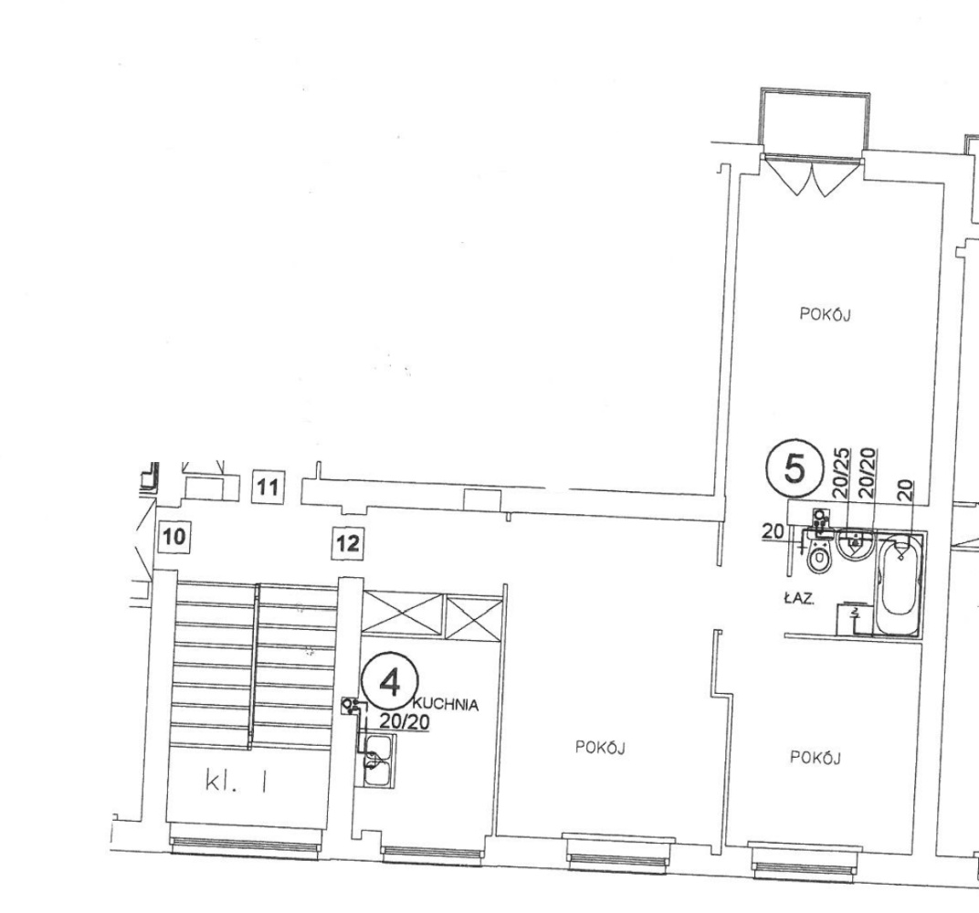
Układ daje bardzo duże możliwości aranżacyjne
Po remoncie mieszkanie idealne zarówno do zamieszkania, jak i na wynajem
Takie metraże i lokalizacje znikają szybko, szczególnie w rozsądnej cenie
Bardzo dobra cena jak na lokalizację i metraż
Blok ceniony i lubiany w okolicy, tuż przy Lasku Bielańskim
◆ Lokalizacja
Bielany – ul. Marymoncka 39.
Blisko Lasek Bielański, tereny spacerowe, komunikacja miejska, sklepy i pełna infrastruktura dzielnicy. Jedna z bardziej poszukiwanych lokalizacji na Bielanach.
◆ Mieszkanie w skrócie
powierzchnia: 53,70 m²
3 oddzielne pokoje + oddzielna kuchnia
możliwość łatwego połączenia kuchni z pokojem i uzyskanie salonu z aneksem + 2 osobne sypialnie
mieszkanie do gruntownego remontu
do lokalu przynależy piwnica
budynek zarządzany przez wspólnotę
◆ Stan prawny – ważne informacje
brak zadłużeń i wpisów w księdze wieczystej
typowy akt notarialny – bez ryzyk prawnych
możliwy zakup na kredyt
Data dodania: 2026-02-03 10:23
Data modyfikacji: 2026-02-03 10:28


