2-pok,balkon, pod inwestycję, al.Karkonoska,Krzyki
cena: 549900 złMieszkanie Sprzedam
dolnośląskie Wrocław Krzykioferta archiwalna
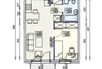
Na sprzedaż nowoczesne mieszkanie o powierzchni 35,63 m², usytuowane na 1 piętrze w nowoczesnym, 8-piętrowym budynku na rozwijającym się osiedlu w południowej części Wrocławia.
Topowa lokalizacja:
Kameralne osiedle tuż obok osiedla Belveder Park
Bezpośredni dostęp do komunikacji miejskiej – tramwaje i autobusy
Błyskawiczny dojazd do A4 i obwodnicy Wrocławia
W pobliżu Park Kleciński, Krzycki, Południowy – idealne na spacery i sport
Centrum handlowe Aleja Bielany i liczne lokale usługowe na wyciągnięcie ręki
Funkcjonalny układ pomieszczeń:
Przestronny salon z aneksem kuchennym – 18,90 m²
Ustawna sypialnia – 9,59 m²
Łazienka z możliwością nowoczesnej aranżacji – 3,92 m²
Przedpokój – 3,22 m²
Balkon – idealny do relaksu
Atuty, które wyróżniają tą nieruchomość:
Stan deweloperski – pełna swoboda aranżacji
Możliwość wydzielenia dwóch kawalerek – idealne pod inwestycje
Nowoczesne, zielone osiedle z ochroną i monitoringiem
Fitness i klub mieszkańca dla lokatorów
Miejskie ogrzewanie, niskie koszty eksploatacji (czynsz ok. 450 zł)
Wystawa okien: wschodnia.
Informacje dodatkowe:
Termin zakończenia budowy: II kwartał 2026
Załączone zdjęcia przedstawiają wizualizacje
Dodatkowe możliwości zakupu:
Miejsce postojowe w garażu podziemnym – 40 000 zł
Komórka lokatorska – 10 000 zł
Lokalizacja przy linii tramwajowej, bliskość wyjazdu z Wrocławia, wysoki standard osiedla, funkcjonalny układ a zarazem cisza i zieleń, sprawiają, że to mieszkanie doskonale sprawdzi się zarówno jako wymarzone lokum dla siebie, jak i pewna inwestycja pod wynajem.
Jeśli planują Państwo zakup mieszkania inwestycyjnie z chęcią przyjmę zarządzanie najmem. Pośredników zapraszam tylko z zainteresowanymi klientami, nie podpisuję umów, proszę nie dzwonić w tej sprawie! Możliwość kontaktu w języku polskim, angielskim i ukraińskim.
Szukają Państwo podobnej oferty w innej części miasta? Proszę o kontakt, mam kilka innych nieruchomości w trakcie remontu. Rozważę również zamianę na inne mieszkanie.
Data dodania: 2025-04-10 07:51
Data modyfikacji: 2025-04-10 14:53


