Mieszkanie 2 pokoje | bez prowizji | Prądzyńskiego
cena: 619000 złMieszkanie Sprzedam
dolnośląskie Wrocław Krzyki532 ... ... Pokaż numer
Wyślij wiadomość
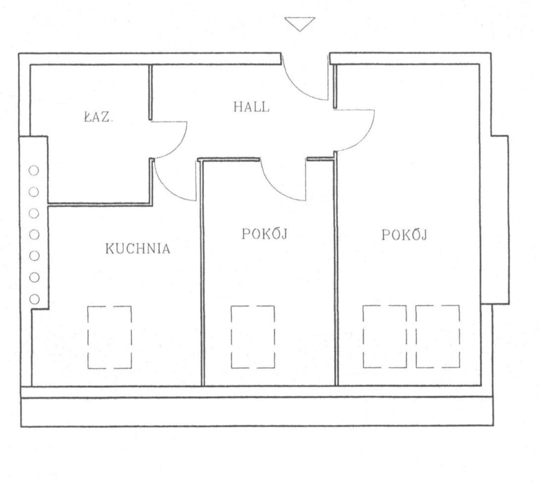
Na sprzedaż przestronne mieszkanie 58,75m2 w centrum Wrocławia przy ulicy Gen. Ignacego Prądzyńskiego.
Mieszkanie jest w pełni własnościowe, wolne od jakichkolwiek zobowiązań.
Oferowana nieruchomość jest na 4 piętrze w 4 piętrowej kamienicy bez windy.
Mieszkanie jest jasne, czyste, schludne, zadbane i gotowe do zamieszkania. Jest też bardzo ciche, zapewnia prywatność i dyskrecje. Możliwa rozbudowa i stworzenie antresoli.
Na zdjęciach przedstawione wszystkie pomieszczenia. Widoczne na zdjęciach meble są na wyposażeniu, w mieszkaniu zostaje cały sprzęt: pralka, kuchenka, zmywarka, piekarnik, lodówka, tv
Dostępne od zaraz, do obejrzenia po wcześniejszym umówieniu.
Oferta bezpośrednio od właściciela, bez jakiejkolwiek prowizji.
Biurom nieruchomości z góry dziękujemy, nie podpiszemy umowy na wyłączność.
Lokalizacja:
- Przedmieście Oławskie, bardzo dobrze skomunikowane z centrum miasta
- 2km od Rynku,
- 1km Niskie Łąki, Hydropolis
- 1 km do dworca głównego PKP, PKS
- w pobliżu dostępna pełna infrastruktura: oferta handlowa, służba zdrowia, restauracje, uczelnie, szkoły, przedszkola, tramwaje i autobusy
Mieszkanie:
- powierzchnia: 58,75 m2
- układ: salon, pokój, przedpokój, osobna kuchnia, łazienka
- ogrzewanie: miejskie z węzła w budynku
- klimatyzacja
- okna drewniane
- standard: odświeżone, do wprowadzenia, bez konieczności remontu, bez dodatkowych nakładów
- czynsz: ok 800 zł (woda zimna/ciepła, ogrzewanie, fundusz remontowy), prąd ok. 150 zł
- możliwość stworzenia antresoli (niewykorzystana przestrzeń nad mieszkaniem)
Budynek:
- kamienica z 1866 r.
- generalny remont - 2005 r. (wymienione wszystkie instalacje, okna)
- odświeżanie elewacji, remont dachu - 2019 r.
- prywatny parking wspólnoty przed budynkiem
- teren zabezpieczony domofonem
- monitoring
- światłowód, tv, sat
Treść niniejszego ogłoszenia nie stanowi oferty handlowej w rozumieniu Kodeksu Cywilnego.
Data dodania: 2025-12-05 15:39
Data modyfikacji: 2025-12-12 14:08


